Loading...

Indianapolis, IN, 46256 • Fall Creek • Marion County
$105/sqft
5Beds
4Baths
4,029Sqft
0.63 acLot
1979Built
Waterfront Property
Creek, Stream, Water View
Scenic Views
Creek/Stream · Forest · Trees/Woods · Water
Traditional Style
Built 1979 · 47 years of history
Creekwood
Fall Creek
Outdoor Living
Covered · Deck · Patio
2 Fireplaces
Basement · Family Room
2-Car Garage
Attached · Asphalt · Garage Door Opener · Guest Parking
Premium Finishes
Walk-In Closet(s)
This home is in high demand
Listed 428 days ago · 55 views · Top 0% likely to sell soon
Demand and pricing signals for this listing
55 views
People checking out this listing
428 days on market
Established listing
$105/sqft
Price per square foot
This home ranks in the top 0% of listings most likely to go under contract soon, based on market activity and demand signals.
Want the full market analysis?
Get the detailed selling prediction score, comparable sales data, and price trend forecast for this property.
Free · Delivered to your inbox in minutes
Single Family · Built 1979
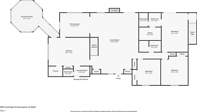
Nestled at the end of a tranquil dead-end street in a prestigious neighborhood, this secluded home offers an exceptional blend of privacy and potential. Designed for serene living, the property boasts a unique architectural layout with a main level complemented by a loft and striking 18' cathedral ceilings in the living room, which along with the master suite, opens onto an expansive elevated deck. This vantage point provides unrivaled views of the lush woods and gently flowing creek that define the rear boundary. The main floor hosts three well-appointed bedrooms, two full bathrooms, and a half bath, seamlessly connected by a dining room and a kitchen that leads to a distinctive enclosed walkway.. This pathway extends to an airy, circular screened patio-the perfect nook for relaxation surrounded by nature's beauty. The fully finished basement enhances the living space, featuring a walkout patio shielded beneath the deck, ideal for a secluded hot tub experience. It includes a cozy living area with a wet bar and a second fireplace, two additional bedrooms, a full bathroom, and a dual-purpose utility room that serves as a practical workshop. Completing this home is a two-car attached garage, offering ample storage and convenience. There is so much potential for this property, and the home is priced to reflect this, making it an inviting opportunity for those looking to customize their dream retreat in a coveted location.
Standout features identified
Our analysis highlights fully finished basement, walkout patio, and airy circular screened patio as key attractions of this home.
Based on current rates
Est. 6.26% rate · 30yr fixed · $340,000 loan
Full calculator →Key facts and listing details
12 categories of property features
11 rooms detailed
Master Bedroom
MainBedroom2
MainBedroom3
MainBedroom4
BasementBedroom5
BasementBonus Room
BasementMarket data and value estimates
3 schools rated nearby
Indianapolis, IN, 46256
3 events
23 years of records
Local context around this listing
Indianapolis, IN • Marion County
Nearby neighborhoods
Nearby cities
Nearby zip codes
Based on information submitted to the MLS GRID as of 2026-04-09 15:58:01 PDT. All data is obtained from various sources and may not have been verified by broker or MLS GRID. Supplied Open House Information is subject to change without notice. All information should be independently reviewed and verified for accuracy. Properties may or may not be listed by the office/agent presenting the information. Some IDX listings have been excluded from this website. [Click here for more information](/mls-disclaimers/#48)
No obligation · Same-day response