Loading...

Rock Hill, SC, 29730 • 29730 • York County
$250/sqft
Down payment assistance available
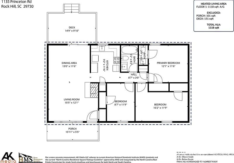
3Beds
2Baths
1,118Sqft
0.38 acLot
1980Built
Spencer Estates
29730
Enhanced Security
Carbon Monoxide Detector(s) · Smoke Detector(s)
Outdoor Living
Deck
This home is in high demand
Listed 8 days ago · 743 views · 61 saves · Top 8% likely to sell soon
Demand and pricing signals for this listing
743 views
People checking out this listing
61 saves
Buyers have saved this home
8 days on market
Recently listed
$250/sqft
Price per square foot
This home ranks in the top 8% of listings most likely to go under contract soon, based on market activity and demand signals.
Want the full market analysis?
Get the detailed selling prediction score, comparable sales data, and price trend forecast for this property.
Free · Delivered to your inbox in minutes
Single Family · Built 1980
Home is equipped with a new stove, refrigerator, and clothes washer and dryer. New roof and gutters in 2025. Updated kitchen and bathrooms. New LTV flooring throughout. New front and rear decks.
Based on current rates
Est. 6.39% rate · 30yr fixed · $224,000 loan
Full calculator →Key facts and listing details
11 categories of property features
2 rooms detailed
Primary Bedroom
MainLiving Room
MainMarket data and value estimates
3 schools rated nearby
Rock Hill, SC, 29730
2 events
24 years of records
Local context around this listing
Rock Hill, SC • York County
Nearby cities
Nearby zip codes
Based on information submitted to the MLS GRID as of 2026-03-27 04:03:01 PDT. All data is obtained from various sources and may not have been verified by broker or MLS GRID. Supplied Open House Information is subject to change without notice. All information should be independently reviewed and verified for accuracy. Properties may or may not be listed by the office/agent presenting the information. Some IDX listings have been excluded from this website. [Click here for more information](/mls-disclaimers/#87)
No obligation · Same-day response