Loading...

Suttons Bay, MI, 49682 • 49682 • Leelanau County
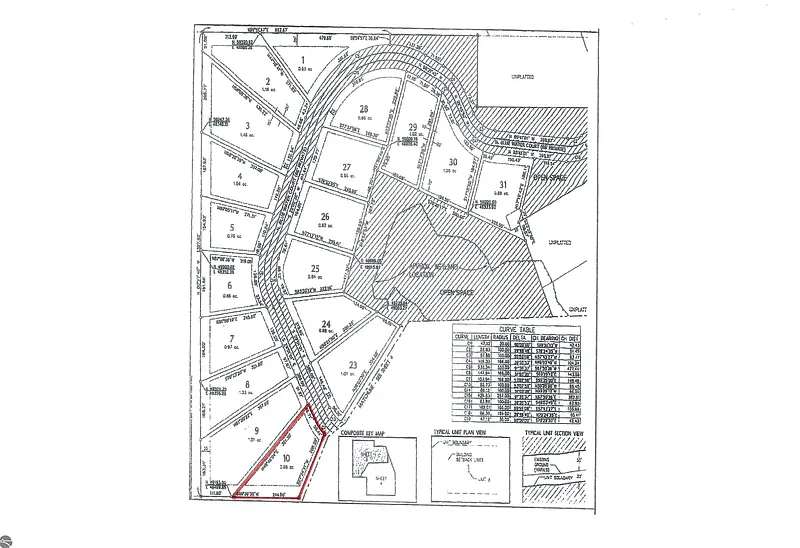
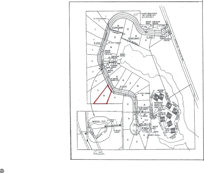
0.98 acLot
Waterfront Property
None
Countryside View Views
Countryside View
Blue Water Ridge
49682
This home is getting attention
Listed 131 days ago · 5 views
Demand and pricing signals for this listing
5 views
People checking out this listing
131 days on market
Established listing
This home ranks in the top 48% of listings most likely to go under contract soon, based on market activity and demand signals.
Want the full market analysis?
Get the detailed selling prediction score, comparable sales data, and price trend forecast for this property.
Free · Delivered to your inbox in minutes
Lot
Looking for a beautiful lot to put your dream home on? Here it is . Wooded and cleared area level and gently sloping lot is great for many home designs. Convenient living location! Blue Water Ridge is an outstanding development in Suttons Bay. You will be amazed at how close you are to all the amenities that Suttons Bay and Leelanau County have to offer. Build your new home amongst other newer homes throughout development.
Based on current rates
Est. 6.75% rate · 30yr fixed · $38,400 loan
Full calculator →Key facts and listing details
4 categories of property features
Market data and value estimates
2 schools rated nearby
Suttons Bay, MI, 49682
3 events
Local context around this listing
Suttons Bay, MI • Leelanau County
Nearby cities
Nearby zip codes
The information in this listing was gathered from third-party sources including the seller. Northern Great Lakes REALTORS® MLS and its subscribers disclaim any and all representations or warranties as to the accuracy of this information. Copyright 2026 Northern Great Lakes REALTORS® MLS. All Rights Reserved.
No obligation · Same-day response