Loading...

Locust Grove, GA, 30248 • 30248 • Henry County
$125/sqft
4Beds
2Baths
1,300Sqft
0 acLot
2005Built
Hardwood Floors
Quality flooring throughout
Demand and pricing signals for this listing
5 views
People checking out this listing
1212 days on market
Established listing
$125/sqft
Price per square foot
Single Family · Built 2005
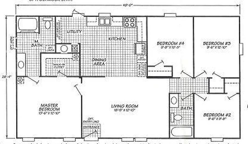
Great floor plan! 4bed 2bath has a bonus room could be used as office or another bedroom. Very nice, super clean, modular home on a nice corner lot. Call for details. DO NOT DISTURB TENANT. Close to Tanger Outlets and Shopping 3miles from interstate, Locust Grove Elementary Locust Grove High School. Fenced yard outdoor storage. credit score/ Job check stubbs call for details.
Based on current rates
Est. 6.59% rate · 30yr fixed · $129,760 loan
Full calculator →Key facts and listing details
8 categories of property features
Market data and value estimates
3 schools rated nearby
Locust Grove, GA, 30248
22 events
22 years of records
Local context around this listing
Locust Grove, GA • Henry County
Nearby cities
Nearby zip codes
No obligation · Same-day response