Loading...

Halton Hills, ON, L0P1K0 • Georgetown • Halton Regional Municipality
Down payment assistance available
4Beds
2Baths
0.74 acLot
Bungalow Style
Bungalow architecture
Private Pool
In Ground
Garage
Available
This home is in high demand
Listed 60 days ago · 17 views · 1 saves · Top 6% likely to sell soon
Demand and pricing signals for this listing
17 views
People checking out this listing
1 saves
Buyers have saved this home
60 days on market
Established listing
This home ranks in the top 6% of listings most likely to go under contract soon, based on market activity and demand signals.
Want the full market analysis?
Get the detailed selling prediction score, comparable sales data, and price trend forecast for this property.
Free · Delivered to your inbox in minutes
Single Family
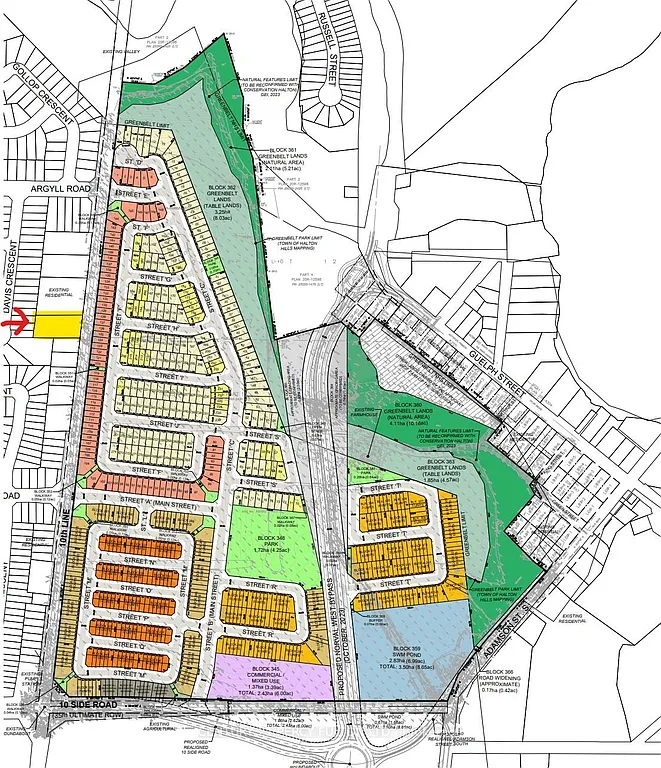
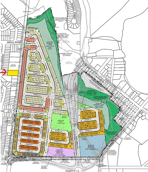
Custom House or Future development Opportunity. A rare opportunity to secure a premium 3/4 acre lot with a 125ft front right in the city, directly across from the approved Southeast Georgetown Secondary Plan community. This oversized parcel offers exceptional potential -whether you're an investor seeking a future development opportunity in a rapidly growing corridor, or an end user looking to build a stunning custom house on one of the few large lots remaining on the street. With major residential growth, parks, trails, and mixed-use development planned across the road, this property also presents strong long-term upside and potential for multi-residential or redevelopment possibilities (subject to approvals). A strategic land hold or a showcase custom home site - the choice is yours. The existing bungalow on a full treed lot with privacy features 3+1bedrooms, a basement with a separate entrance, and an amazing kitchen overlooking the serene backyard - ideal for both everyday living and entertaining. The private outdoor oasis is complete with an inground concrete pool and stylish bar, creating the perfect setting for summer gatherings. A large driveway provides ample parking, and the location offers quick access to Brampton and Mississauga while being within walking distance to banks, grocery stores, and restaurants. Whether you choose to move in as is, renovate and personalize, or explore future development potential, the existing home is in excellent condition and presents a fantastic opportunity for homeowners and investors alike.
Standout features identified
Our analysis highlights existing bungalow, private outdoor oasis, and stylish bar as key attractions of this home.
Based on current rates
Est. 6.75% rate · 30yr fixed · $1,320,000 loan
Full calculator →Key facts and listing details
6 categories of property features
Market data and value estimates
Halton Hills, ON, L0P1K0
Local context around this listing
Halton Hills, ON • Halton Regional Municipality
Nearby neighborhoods
Nearby cities
Nearby zip codes
IDX information is provided exclusively for consumers’ personal, non-commercial use, that it may not be used for any purpose other than to identify prospective properties consumers may be interested in purchasing, and that data is deemed reliable but is not guaranteed accurate by the MLS®.
No obligation · Same-day response