Loading...

Hamilton, ON, L8B0E8 • L8B • Hamilton Division
0.2 acLot
Demand and pricing signals for this listing
4 views
People checking out this listing
155 days on market
Established listing
Lot
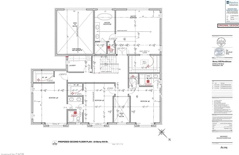
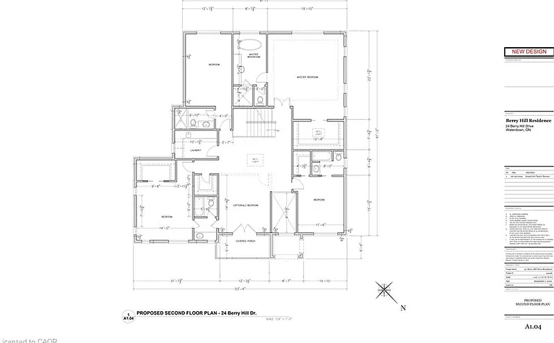
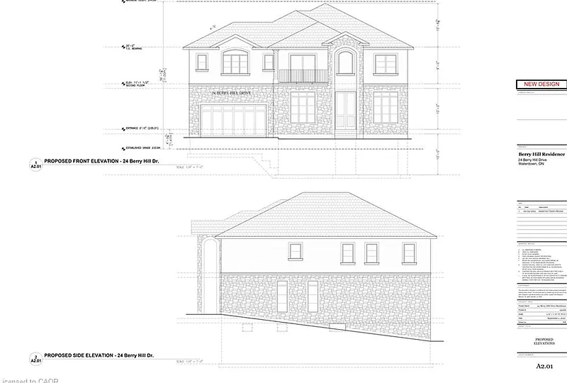
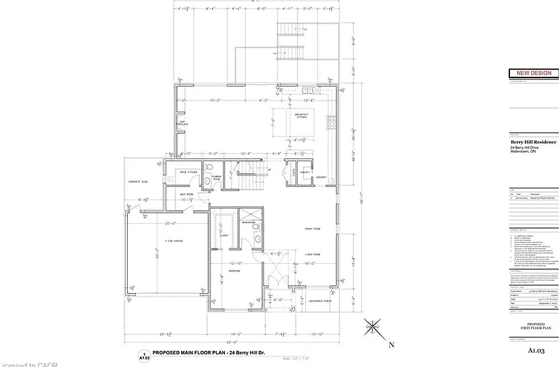
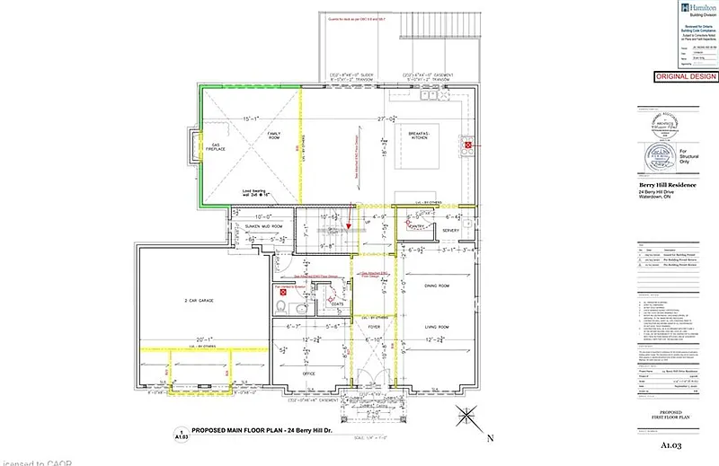
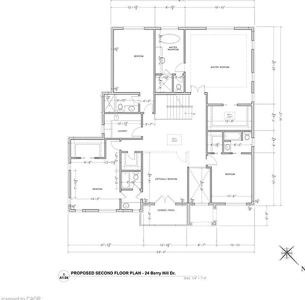
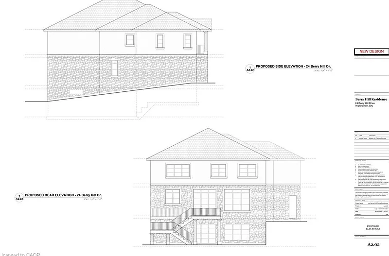
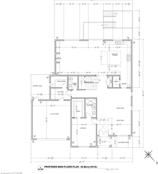
Stunning Lot in Waterdown (61.5' X 137')* Located steps from Waterdown’s downtown, this prime lot offers a unique development opportunity, nestled on a quiet closed avenue (cul-de-sac). With services available at the road and a full plan/permit package included, it’s ready for your custom dream home. Just minutes from parks, schools, shops, trails, and easy access to highways, it’s a rare chance to buy and hold or build now, as property values rise in this flourishing area. *Original Design* Development charges are already paid, and permits are approved for a single detached home of up to 4,000 sq ft with a walk-out basement. Architectural drawings are ready. *New Design* The new plans include a main floor bedroom with a walk-in closet and ensuite, ideal as an in-law suite. A separate spice kitchen adds convenience. The second floor features two master bedrooms with ensuites, plus a loft that can be converted into a fifth bedroom, opening to a covered balcony. Each bedroom has a walk-in closet and ensuite, ensuring privacy and comfort. This lot offers flexibility and potential, whether you’re ready to build or looking for an investment opportunity in a flourishing area.
Based on current rates
Est. 6.75% rate · 30yr fixed · $639,920 loan
Full calculator →Key facts and listing details
2 categories of property features
Market data and value estimates
Hamilton, ON, L8B0E8
5 events
Local context around this listing
Hamilton, ON • Hamilton Division
Nearby neighborhoods
Nearby cities
Nearby zip codes
Data is provided courtesy of Information Technology Systems Ontario, Inc © 2026 Information Technology Systems Ontario Inc. This representation is based in whole or in part on data generated from a Canadian real estate association which assumes no responsibility for its accuracy. IDX information is provided exclusively for personal, non-commercial use, and may not be used for any purpose other than to identify prospective properties consumers may be interested in purchasing. Information is deemed reliable but not guaranteed.
No obligation · Same-day response