Loading...

Chehalis, WA, 98532 • 98532 • Lewis County
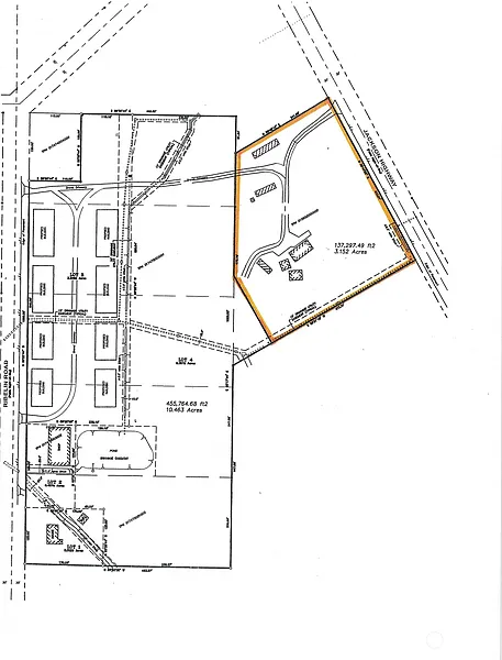
3.2 acLot
Chehalis
98532
Demand and pricing signals for this listing
3 views
People checking out this listing
564 days on market
Established listing
Lot
Now available! Rare 3.152 acre parcel zoned Light Industrial. Some permitted uses include: Storage Units, Professional Office, Retail Sales, Restaurant, Tavern, Manufacturing, Medical Clinic, Cannabis Retail, etc... Buyer to verify intended use with City of Chehalis.
Based on current rates
Est. 6.18% rate · 30yr fixed · $404,000 loan
Full calculator →Key facts and listing details
2 categories of property features
Market data and value estimates
3 schools rated nearby
Chehalis, WA, 98532
1 event
11 years of records
Local context around this listing
Chehalis, WA • Lewis County
Nearby cities
Nearby zip codes
Based on information submitted to the MLS GRID as of 2026-04-07 12:58:44 PDT. All data is obtained from various sources and may not have been verified by broker or MLS GRID. Supplied Open House Information is subject to change without notice. All information should be independently reviewed and verified for accuracy. Properties may or may not be listed by the office/agent presenting the information. [Click here for more information](/mls-disclaimers/#39)
No obligation · Same-day response