Loading...

Woodside, CA, 94062 • 94062 • San Mateo County
0.4 acLot
Demand and pricing signals for this listing
7 views
People checking out this listing
2238 days on market
Established listing
Lot
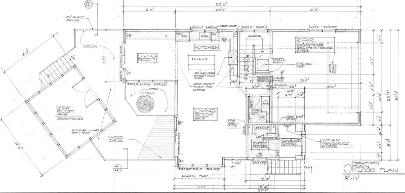
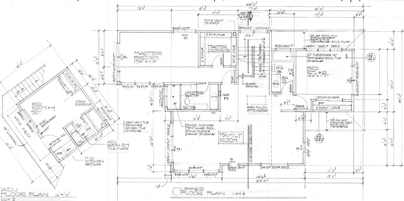
Private lot in prime Redwood Park area of Woodside offers an extraordinary opportunity to build the home of your dreams! Plan is APPROVED by the Board of Supervisors of the County of San Mateo. The lot is proven buildable. Buyer can start to work with the County Building Department immediately. Planned 3 bedrooms and 3.5 bathrooms (1936sqft main house+224sqft detached ADU+224sqft art studio). Its a perfect rustic hideaway! Private, yet not secluded setting close to 84 and easy access to 280 & 92. Dont miss the opportunity if you love nature and a quiet neighborhood!
Key facts and listing details
2 categories of property features
Market data and value estimates
3 schools rated nearby
Woodside, CA, 94062
7 events
Local context around this listing
Woodside, CA • San Mateo County
Nearby cities
Nearby zip codes
No obligation · Same-day response