Loading...

Franklin Park, IL, 60131 • 60131 • Cook County
1.7 acLot
Demand and pricing signals for this listing
149 views
People checking out this listing
22 days on market
Recently listed
Lot
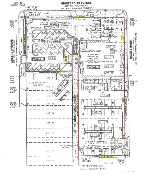
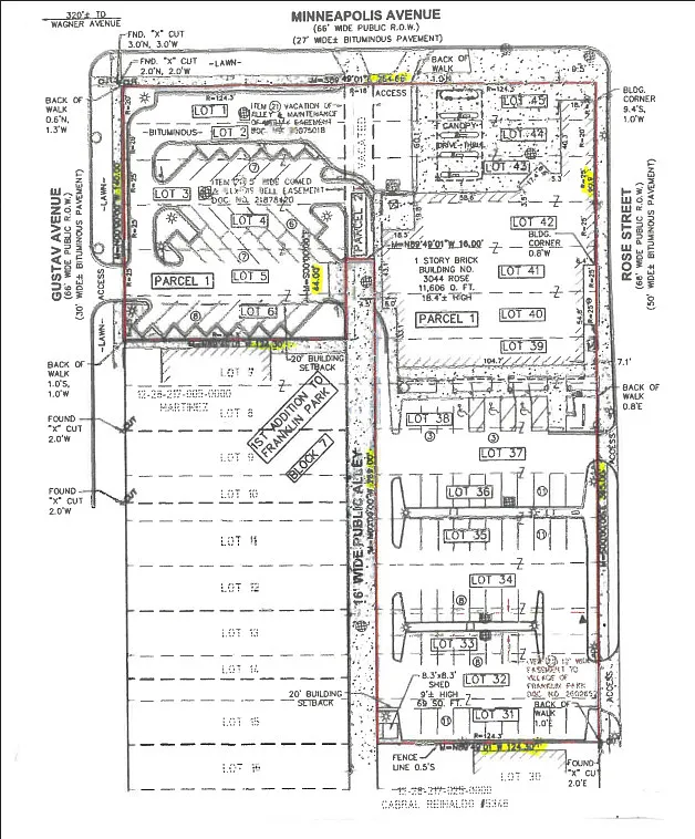
The Village of Franklin Park is open to several ideas for the redevelopment of this site, including commercial, medical, or a six-story apartment building. Property is walkable to downtown Franklin Park, where there are many stores and restaurants. Conveniently located near the METRA station, which will get you to downtown Chicago in 25 minutes. This is a great redevelopment opportunity for any developer. Call listing broker for more information. Marketing brochure included as additional information.
Based on current rates
Est. 6.75% rate · 30yr fixed · $3,900,000 loan
Full calculator →Key facts and listing details
1 category of property features
Market data and value estimates
3 schools rated nearby
Franklin Park, IL, 60131
1 event
Local context around this listing
Franklin Park, IL • Cook County
Nearby cities
Nearby zip codes
Based on information submitted to the MLS GRID as of 2026. All data is obtained from various sources and may not have been verified by broker or MLS GRID. Supplied Open House Information is subject to change without notice. All information should be independently reviewed and verified for accuracy. Properties may or may not be listed by the office/agent presenting the information. [Click here for more information](/mls-disclaimers/#17)
No obligation · Same-day response