Loading...

Verdi, NV, 89439 • 89439 • Washoe County
1.1 acLot
Scenic Views
Mountain(s) · Park/Greenbelt · Trees/Woods
River Pines
89439
1d on Market
Listed Mar 14, 2026
This home is getting attention
Listed 1 day ago · 118 views · 3 saves
Demand and pricing signals for this listing
118 views
People checking out this listing
3 saves
Buyers have saved this home
1 day on market
Just listed — act fast
This home ranks in the top 41% of listings most likely to go under contract soon, based on market activity and demand signals.
Want the full market analysis?
Get the detailed selling prediction score, comparable sales data, and price trend forecast for this property.
Free · Delivered to your inbox in minutes
Lot
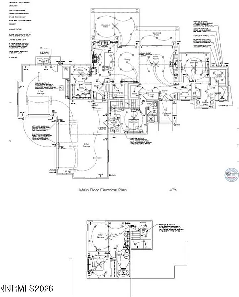
Big mountain views, Truckee River access, and wide-open space - this 1+ acre homesite in exclusive River Pines delivers the lifestyle people move to Verdi for. Approved architectural plans for a 2,839 sq. ft. custom home have already been thoughtfully designed to capture the breathtaking, panoramic views of the surrounding snow-capped Sierra Nevada mountains. With no homes directly beside or behind the parcel, the setting offers exceptional privacy and a stunning natural backdrop. The lot is ready to build, with a well already installed, engineered septic system designed, and power and cable available at the street. Plans have been approved by both the River Pines Architectural Committee and the City of Reno, allowing the next owner to move forward quickly by pulling permits and beginning construction. Alternatively, buyers may bring their own vision and design a completely custom home. River Pines residents enjoy private access to a walking path leading to the Truckee River, creating a peaceful outdoor lifestyle rarely found so close to town. Ideally located just off Bridge Street in Verdi, you're 10-15 minutes to downtown Reno, about 25 minutes to Truckee, and close to world-class hiking, fishing, skiing, dining, and shopping. Artist renderings of home roughly based off plans.
Standout features identified
Our analysis highlights big mountain views, stunning natural backdrop, and wide-open space as key attractions of this home.
Based on current rates
Est. 5.93% rate · 30yr fixed · $348,000 loan
Full calculator →Key facts and listing details
4 categories of property features
Market data and value estimates
3 schools rated nearby
Verdi, NV, 89439
8 events
12 years of records
Local context around this listing
Verdi, NV • Washoe County
Nearby cities
Nearby zip codes
IDX information is provided exclusively for personal, non-commercial use, and may not be used for any purpose other than to identify prospective properties consumers may be interested in purchasing. Information is deemed reliable but not guaranteed. The content relating to real estate for sale on this web site comes in part from the Broker Reciprocity/ IDX program of the Northern Nevada Regional Multiple Listing Service°. Real estate listings held by brokerage firms other than Zillow, Inc. are marked with the Broker Reciprocity logo and detailed information about those listings includes the name of the listing brokerage. Any use of the content other than by a search performed by a consumer looking to purchase or rent real estate is prohibited. © 2025 Northern Nevada Regional Multiple Listing Service® MLS. All rights reserved.
No obligation · Same-day response