Loading...

Florissant, MO, 63031 • 63031 • Saint Louis County
$171/sqft
4Beds
3Baths
1,107Sqft
Demand and pricing signals for this listing
4 views
People checking out this listing
2019 days on market
Established listing
$171/sqft
Price per square foot
Single Family
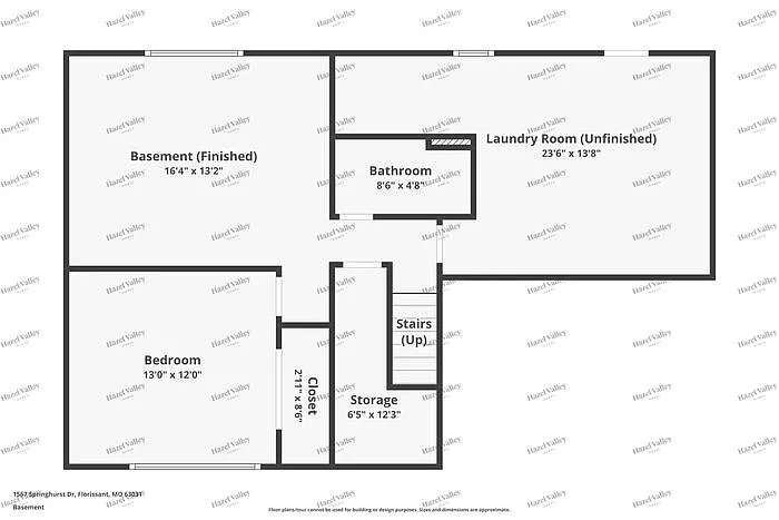
Spacious split level in Florissant! Step into the open-concept layout featuring a spacious living room with original hardwood flooring and carpeted for added comfort. Each bedroom offers generous space for various bed sizes and includes ample closet storage. Updated bathrooms and window coverings on all windows round out this perfect home. The kitchen is equipped with trendy cabinetry, modern countertops, and sleek stainless-steel appliances perfect for both everyday cooking and entertaining. The covered carport and fenced in backyard make this home feel like your own private oasis. Don't miss your chance to call this your new home Bedrooms: 4 Bathrooms: 2.5 SQ. FT. 1107 Flooring: Hardwood / LVP / Carpet Utilities: Electric, Gas, Water, Trash, Sewer, Lawncare & Snow Removal Basement: Basement Included Laundry: Electric - Washer and Dryer Hookups in Unit Pets: Allowed Security Deposit: $1820 Move in fee: $125 Application Fee: $55 per adult application Resident Benefit Package: $49.95 Monthly Charge DISCLOSURES: This property may require a municipal inspection which may affect when it is available for move-in. There may already be applications submitted for this property at the time you submit your application. We cannot guarantee this home, although it may be available at the time your application is submitted. A security deposit will not be accepted until the rental application is approved. Looking for a new place to call home? Search for open rentals with Hazel Valley where comfort and happiness are our top priority. All Hazel Valley Homes are enrolled in the Resident Benefits Package (RBP) for $49.95/month which includes renters insurance, HVAC air filter delivery (for applicable properties), credit building to help boost your credit score with timely rent payments, $1M Identity Protection, move-in concierge service making utility connection and home service setup a breeze during your move-in, our best-in-class resident rewards program, and much more! This property allows self guided viewing without an appointment. Contact for details.
Standout features identified
Our analysis highlights fenced in backyard, covered carport, and ample closet storage as key attractions of this home.
Based on current rates
Est. 6.81% rate · 30yr fixed · $151,600 loan
Full calculator →Key facts and listing details
4 categories of property features
Market data and value estimates
3 schools rated nearby
Florissant, MO, 63031
13 events
24 years of records
Local context around this listing
Florissant, MO • Saint Louis County
Nearby cities
Nearby zip codes
No obligation · Same-day response