Loading...

Jackson, NJ, 08527 • 08527 • Ocean County
3.1 acLot
None
08527
Demand and pricing signals for this listing
14 views
People checking out this listing
346 days on market
Established listing
Lot
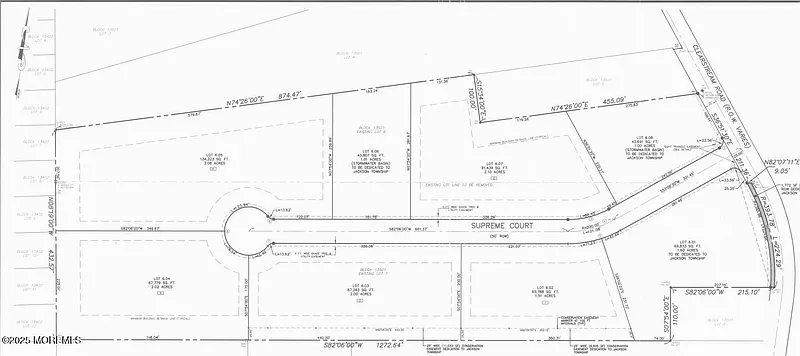
You've Got to See These Supreme oversized Cul-De-Sac Lots! Nestled in a premium location close to EVERYTHING, These 5 lots offer a once in a lifetime opportunity to build the home of your dreams. Already divided and ready for your shovel, the Clearstream Area will never be the same after your final verdict is Supreme Court!
Based on current rates
Est. 6.31% rate · 30yr fixed · $719,200 loan
Full calculator →Key facts and listing details
1 category of property features
Market data and value estimates
3 schools rated nearby
Jackson, NJ, 08527
1 event
5 years of records
Local context around this listing
Jackson, NJ • Ocean County
Nearby neighborhoods
Nearby cities
Nearby zip codes
IDX information is provided exclusively for personal, non-commercial use, and may not be used for any purpose other than to identify prospective properties consumers may be interested in purchasing. Information is deemed reliable but not guaranteed.
No obligation · Same-day response