Loading...

Brooklyn, NY, 11203 • Wingate • Kings County
$579/sqft
Down payment assistance available
9Beds
6Baths
4,840Sqft
2018Built
Wingate
Wingate
Outdoor Living
Deck · Other
Hardwood Floors
Quality flooring throughout
This home is getting attention
Listed 55 days ago · 186 views · 1 saves
Demand and pricing signals for this listing
186 views
People checking out this listing
1 saves
Buyers have saved this home
55 days on market
Established listing
$579/sqft
Price per square foot
This home ranks in the top 32% of listings most likely to go under contract soon, based on market activity and demand signals.
Want the full market analysis?
Get the detailed selling prediction score, comparable sales data, and price trend forecast for this property.
Free · Delivered to your inbox in minutes
Multi Family · Built 2018
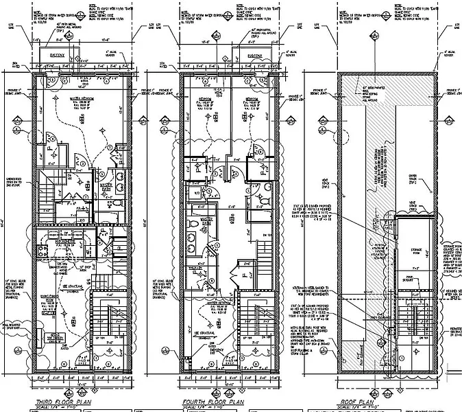
3 Duplex Building For Sale Between Albany and Troy Ave - Crown Heights Border 653 Maple St Brooklyn NY 11203 Property Overview This brand-new ground-up construction is delivered in finished condition, offering a rare opportunity to own a 20-foot wide multi-family building in Brooklyn. Sitting on a 2,000-square-foot lot (20' x 100'), the property offers 4,840 square feet of residential zoning space. The structure is designed for significant depth, reaching 60.5 feet long. It perfectly balances high-density living with generous private amenities, including a full basement, four residential stories, a rooftop accessible to everyone, and a large backyard. The Three Duplex Units The building is uniquely divided into three distinct duplex apartments, each offering a 3-bedroom, 2-bathroom layout: * - Unit 1: This duplex covers approximately 1,154 square feet and utilizes the first floor and the large basement area. This unit features private access to the large backyard. * - Unit 2: A spacious middle duplex totaling approximately 1,182 square feet across two levels. This unit includes a porch in the back. * - Unit 3: The upper duplex, also totaling approximately 1,182 square feet, which features easy access to the rooftop. This unit also includes a porch in the back. Key Measurements & Features * - Lot Dimensions: A 20' x 100' lot totaling 2,000 square feet. * - Building Dimensions: An expansive 20' wide by 60.5' long footprint. * - Rooftop: The top level features a rooftop area accessible to all residents, with a 273-square-foot bulkhead for convenient access. * - Large Backyard: The property features a large rear yard that extends approximately 39.5 feet deep. * - Bedrooms: Every unit is designed with a private master bedroom plus two additional bedrooms. * - Bathrooms: Each duplex provides two full bathrooms. This property is a rare find that combines modern four-story masonry construction with the expansive feel of a full basement and a rooftop for everyone to enjoy. Exclusive listing by Valerie Sebbag 555 Properties LLC For viewing and more information call Valerie Sebbag
Based on current rates
Est. 6.87% rate · 30yr fixed · $2,240,000 loan
Full calculator →Key facts and listing details
3 categories of property features
Market data and value estimates
3 schools rated nearby
Brooklyn, NY, 11203
20 events
25 years of records
Local context around this listing
Brooklyn, NY • Kings County
Nearby neighborhoods
Nearby cities
Nearby zip codes
No obligation · Same-day response