Loading...

Champaign, IL, 61822 • 61822 • Champaign County
$139/sqft
5Beds
4Baths
2,910Sqft
0.31 acLot
1987Built
Demand and pricing signals for this listing
2 views
People checking out this listing
1603 days on market
Established listing
$139/sqft
Price per square foot
Single Family · Built 1987
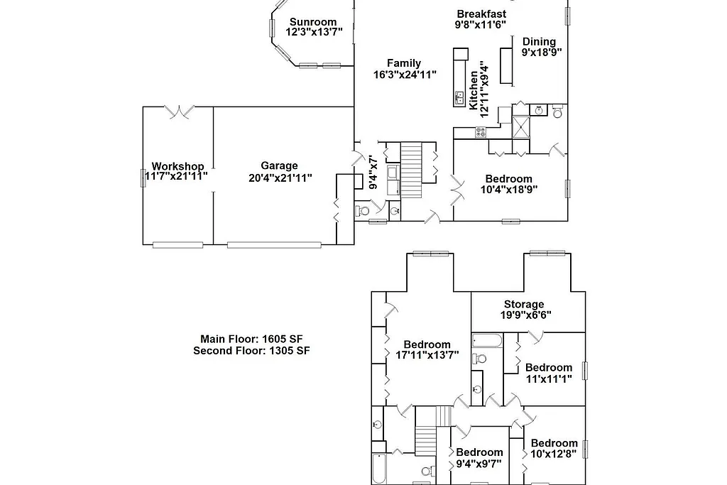
You will love this well cared for and *pre-inspected* 5BR/3.5BA/3CAR, 2900+sf home in Cherry Hills with 4-season sunroom and 2 Master Suites (one on each level). Solid wood Amish built kitchen cabinets with quartz countertops, breakfast nook and large dining room. 1st floor Master Suite, 4 bedrooms on 2nd floor and one has additional bonus room for extra storage. Central Vacuum. Large Corner Lot (nice sized yard!) 3rd car garage is a workshop.
Based on current rates
Est. 6.24% rate · 30yr fixed · $322,880 loan
Full calculator →Key facts and listing details
Market data and value estimates
3 schools rated nearby
Champaign, IL, 61822
7 events
25 years of records
Local context around this listing
Champaign, IL • Champaign County
Nearby cities
Nearby zip codes
No obligation · Same-day response