Loading...

Champaign, IL, 61820 • 61820 • Champaign County
$172/sqft
2Beds
2.5Baths
1,502Sqft
2017Built
Demand and pricing signals for this listing
3 views
People checking out this listing
3777 days on market
Established listing
$172/sqft
Price per square foot
Single Family · Built 2017
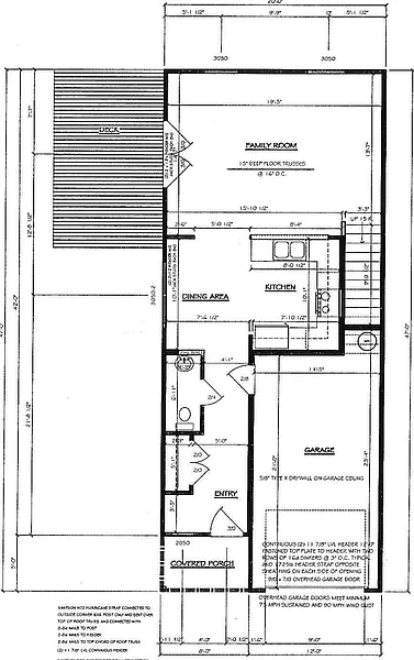
This town home was just completed summer of 2017. A quarter of a block from Spalding Park, an 8 minute stroll to Downtown Champaign, a five minute walk to west Side Park and Stratton School is four blocks away. Tenants have access to our new fitness center 4 blocks away. This town home is a two bedroom. Each bedroom has its own full bath and walk-in closet. The second floor study could also be a guest bedroom or a nursery or home office. We always super insulate our work and include the best high efficiency heating and cooling. (see photos) This should be a very inexpensive home for utilities. We include in the rent lawn mowing, weekly trash and recycling pick-up and sanitary sewer bills. For lots more information see rdi.properties This is an all electric home. Tenant pays only water and electricity. This is an all electric home - tenant will pay for electric and water - included in rent is lawn mowing by our staff, sanitary sewer fees and weekly trash and recycling curbside pickup.
Based on current rates
Est. 6.24% rate · 30yr fixed · $206,800 loan
Full calculator →Key facts and listing details
3 categories of property features
3 rooms detailed
Walk In Closet
Dining Room
Family Room
Market data and value estimates
3 schools rated nearby
Champaign, IL, 61820
4 events
25 years of records
Local context around this listing
Champaign, IL • Champaign County
Nearby cities
Nearby zip codes
No obligation · Same-day response