Loading...

Champaign, IL, 61821 • 61821 • Champaign County
$170/sqft
3Beds
2Baths
1,617Sqft
1943Built
City Views
City
Character Home
Built 1943 · 83 years of history
Hardwood Floors
Quality flooring throughout
Demand and pricing signals for this listing
2 views
People checking out this listing
3703 days on market
Established listing
$170/sqft
Price per square foot
Single Family · Built 1943
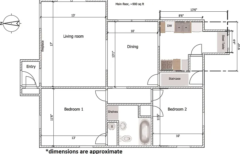
Charm, character and unique architecture best describe this 3 bedroom, 2 bath home with arched doorways, beautiful hardwood floors, gas fireplace, new Pella windows and French doors. The open floorplan offers plenty of room for entertaining. Kitchen with breakfast nook includes access to fenced-in backyard featuring a 600 sq ft patio, shaded trees and raised garden beds for outdoor living. 2nd floor offers a great bonus room perfect for a family room, office or master suite. Convenient to Clark Park, schools and bus lines. Numerous updates include roof 2011, HVAC 2012 water heater 2014 and many more! For a complete list of updates, contact listing agent.
Based on current rates
Est. 6.24% rate · 30yr fixed · $219,680 loan
Full calculator →Key facts and listing details
7 categories of property features
2 rooms detailed
Breakfast Nook
Dining Room
Market data and value estimates
3 schools rated nearby
Champaign, IL, 61821
6 events
25 years of records
Local context around this listing
Champaign, IL • Champaign County
Nearby cities
Nearby zip codes
No obligation · Same-day response