Loading...

Urbana, IL, 61801 • 61801 • Champaign County
$147/sqft
2Beds
1Baths
864Sqft
Outdoor Living
Patio
Tile Floors
Quality flooring throughout
Demand and pricing signals for this listing
1 views
People checking out this listing
2927 days on market
Established listing
$147/sqft
Price per square foot
Single Family
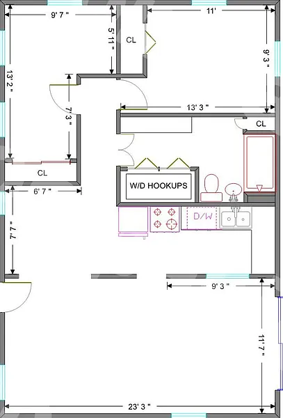
Tucked away in a quiet neighborhood, this cozy 2-bedroom, 1-bath home features a driveway for convenient parking, a shed for extra storage, and a patio perfect for outdoor relaxation or entertaining. Inside, the home features a functional layout, a dishwasher for easy cleanup, and washer/dryer hookups for added convenience. Plus, this home is pet-friendly, making it an ideal choice for animal lovers. Don't miss out on this charming homecontact us today for more details! Changing air filters on time is a required tenant responsibility. Our Utility & Maintenance Reduction program makes it as easy as possible by having the exact filters your home needs, delivered every 90 days. You'll enjoy saving up to 15% on monthly heating & cooling bills, improved indoor air quality, and reduce your liability by simply changing it when it arrives on your doorstep. By applying for eligible properties, the applicant understands and agrees to auto-enrollment in the Utility & Maintenance Reduction Program at a cost of $10.00 per month without demand, payable with rent as outlined in the lease agreement.
Standout features identified
Our analysis highlights quiet neighborhood, functional layout, and driveway for convenient parking as key attractions of this home.
Based on current rates
Est. 6.77% rate · 30yr fixed · $101,600 loan
Full calculator →Key facts and listing details
10 categories of property features
Market data and value estimates
3 schools rated nearby
Urbana, IL, 61801
13 events
25 years of records
Local context around this listing
Urbana, IL • Champaign County
Nearby neighborhoods
Nearby cities
Nearby zip codes
No obligation · Same-day response