Loading...

Urbana, IL, 61801 • 61801 • Champaign County
$168/sqft
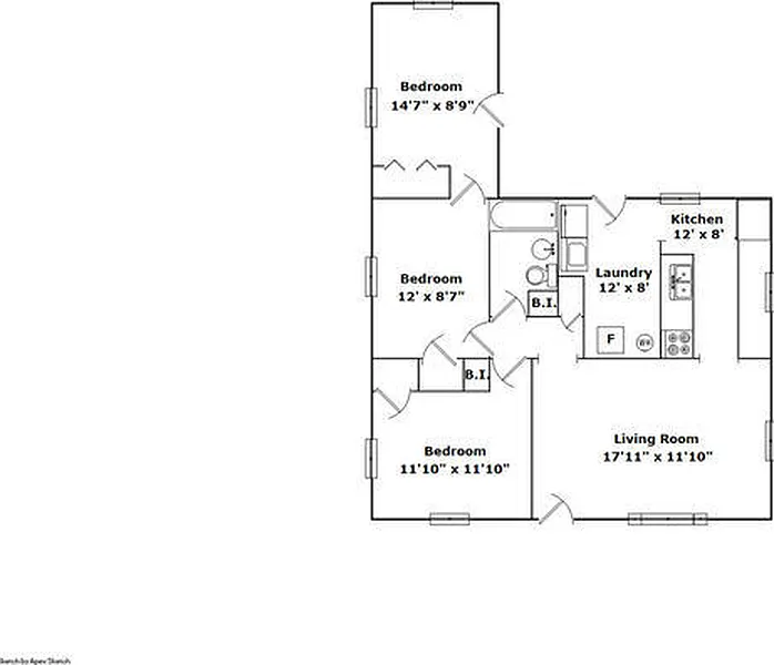
3Beds
1Baths
882Sqft
0.16 acLot
1954Built
Hardwood Floors
Quality flooring throughout
Demand and pricing signals for this listing
1 views
People checking out this listing
1379 days on market
Established listing
$168/sqft
Price per square foot
Single Family · Built 1954
SOLD AT LIST.
Based on current rates
Est. 6.88% rate · 30yr fixed · $118,320 loan
Full calculator →Key facts and listing details
6 categories of property features
Market data and value estimates
3 schools rated nearby
Urbana, IL, 61801
13 events
25 years of records
Local context around this listing
Urbana, IL • Champaign County
Nearby neighborhoods
Nearby cities
Nearby zip codes
No obligation · Same-day response