Loading...

Lakewood, OH, 44107 • 44107 • Cuyahoga County
$228/sqft
4Beds
3Baths
2,100Sqft
0.11 acLot
1919Built
Colonial Style
Built 1919 · 107 years of history
Demand and pricing signals for this listing
8 views
People checking out this listing
2049 days on market
Established listing
$228/sqft
Price per square foot
Single Family · Built 1919 · Historic
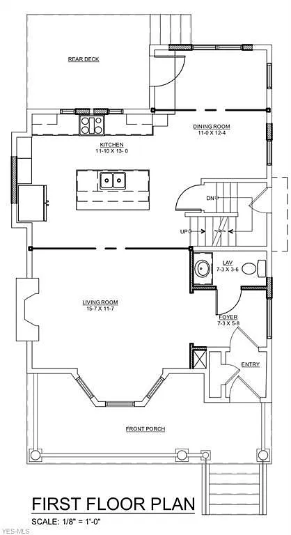
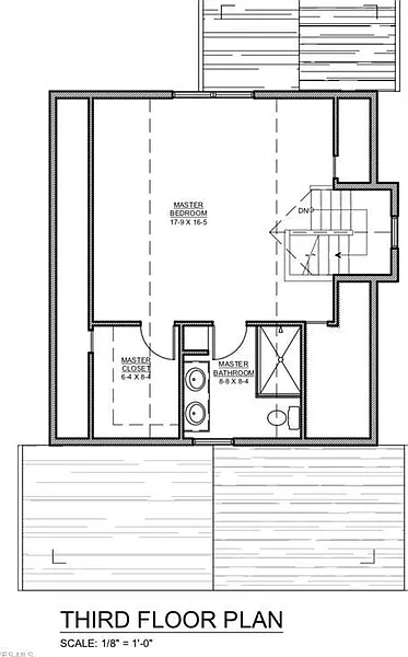
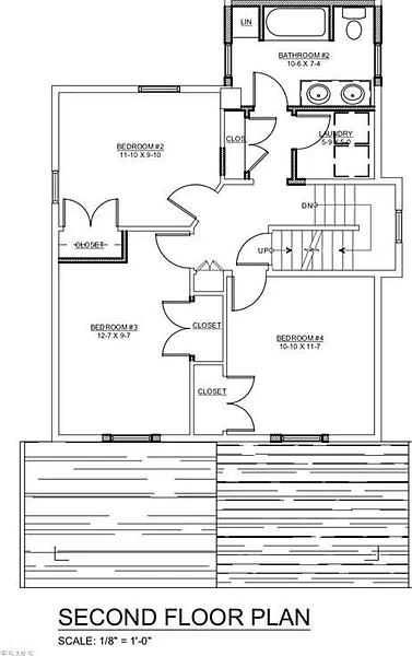
Custom home under construction by award winning design/builders! Eligible for 5 YEAR TAX ABATEMENT! The architectural overhaul includes a complete 3rd floor tear off to accommodate a new addition to add tall ceilings to the 3rd floor master suite. New interior framing. New insulation. New drywall. New electric. New plumbing. New HVAC. New hot water tank. New interior paint. Refinished original hard wood floors. New exterior paint. New ext doors. New windows. New roof. Deck. New landscaping. - NEARLY EVERYTHING NEW INSIDE & OUT! - 4 BR, 2.5 Baths - Large open-concept 1st floor with refinished wood floors, large living room with fireplace & original built-ins. Stunning kitchen w/ stainless appliances, solid wood Shaker cabinetry, & top of the line quartzite stone. Convenient half bath on 1st floor. 2nd floor has 3 big bedrooms w/ hardwood floors, large full bath & highly desired 2nd floor laundry! Private 3rd floor master suite w/ huge walk-in closet & high end master bath w/ custom marble & subway tile shower & double vanity. 2 car garage. Incredible attention to detail in finishes... Great West Lakewood location... Make this one-of-a-kind home yours!
Based on current rates
Est. 6.17% rate · 30yr fixed · $382,560 loan
Full calculator →Key facts and listing details
5 categories of property features
Market data and value estimates
3 schools rated nearby
Lakewood, OH, 44107
7 events
25 years of records
Local context around this listing
Lakewood, OH • Cuyahoga County
Nearby cities
Nearby zip codes
No obligation · Same-day response