Loading...

Wilmette, IL, 60091 • 60091 • Cook County
$460/sqft
5Beds
6.5Baths
6,200Sqft
0.3 acLot
2014Built
Demand and pricing signals for this listing
7 views
People checking out this listing
4111 days on market
Established listing
$460/sqft
Price per square foot
Single Family · Built 2014
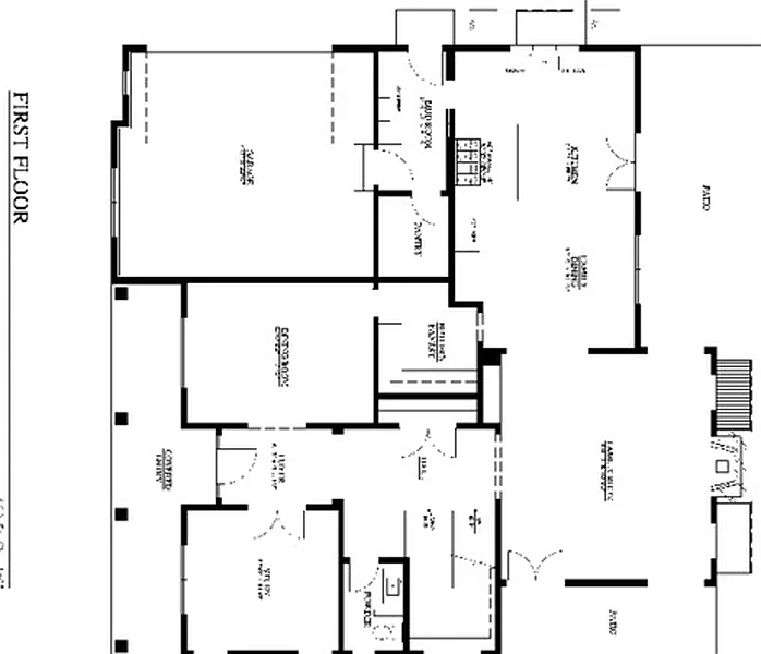
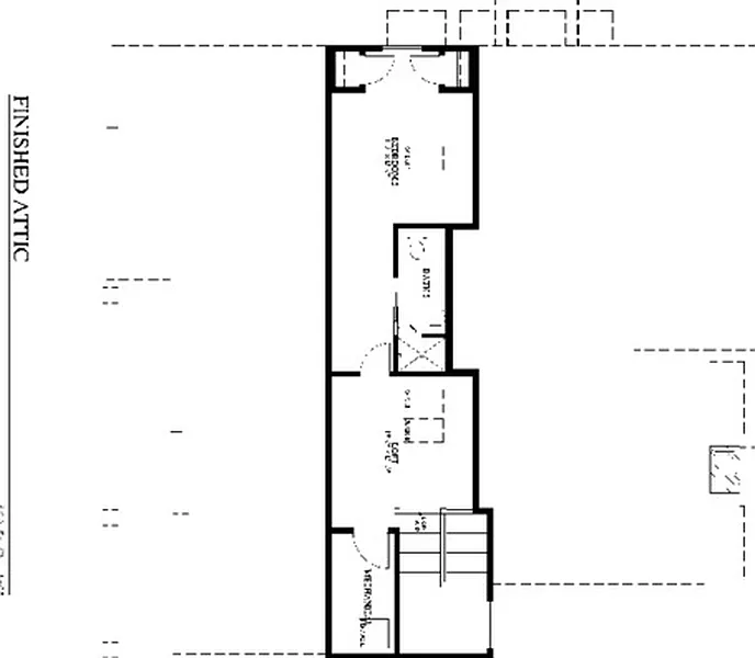
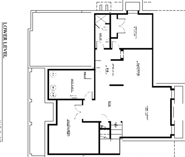
Incredible new construction in a fabulous neighborhood! Large eat in gourmet kitchen w/top of the line appliances,& a spacious family room. Amazing master suite w/giant walk-in closet&luxurious bath.2nd floor laundry,3 additional bedrooms w/baths.3rd floor includes loft & 5th bedrm&bath. Incredible lower level w/rec rm, game rm, exercise rm,& 6th bed&bath.
Based on current rates
Est. 6.44% rate · 30yr fixed · $2,283,600 loan
Full calculator →Key facts and listing details
4 categories of property features
Market data and value estimates
3 schools rated nearby
Wilmette, IL, 60091
7 events
25 years of records
Local context around this listing
Wilmette, IL • Cook County
Nearby neighborhoods
Nearby cities
Nearby zip codes
No obligation · Same-day response