Loading...

Martinez, CA, 94553 • 94553 • Contra Costa County
$522/sqft
3Beds
2Baths
1,376Sqft
0.02 acLot
2022Built
Demand and pricing signals for this listing
2 views
People checking out this listing
1222 days on market
Established listing
$522/sqft
Price per square foot
Single Family · Built 2022
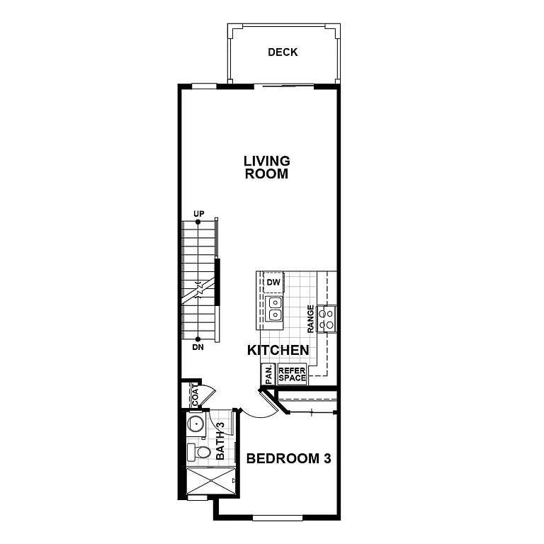
Historic Martinez, one of California's first towns, once served as a ferryboat transit point for miners on their way to the gold fields in the mid-1800s. Tucked against beautiful open space, Martinez offers stunning walking, hiking, and biking trails through the hills and along the waterfront. The waterfront's premium bocce ball courts also host the country's largest bocce federation. Just steps away are the newly built Skate Park, Softball Fields, Yacht Club, and the Martinez Waterfront Amphitheater. A great location for commuters, Martinez is ideally located between 680 and Highway 4. Come tour our Alhambra floor plan: 3 bedrooms, 3 baths, 2 car garage, nice view from the balcony. This townhome will be completed in November just in time for the holidays. Home includes $46,000+ in upgrades. Make this your home today!
Based on current rates
Est. 6.10% rate · 30yr fixed · $574,720 loan
Full calculator →Key facts and listing details
2 categories of property features
Market data and value estimates
3 schools rated nearby
Martinez, CA, 94553
6 events
6 years of records
Local context around this listing
Martinez, CA • Contra Costa County
Nearby cities
Nearby zip codes
No obligation · Same-day response