Loading...

Cincinnati, OH, 45243 • 45243 • Hamilton County
$610/sqft
4Beds
3Baths
849Sqft
0.15 acLot
1928Built
Conventional Style
Built 1928 · 98 years of history
Tile & Hardwood Floors
Quality flooring throughout
Demand and pricing signals for this listing
8 views
People checking out this listing
2260 days on market
Established listing
$610/sqft
Price per square foot
Single Family · Built 1928 · Historic
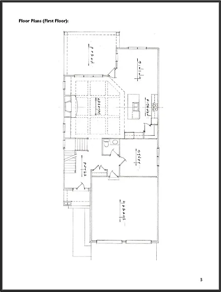
This 849 square foot single family home has 4 bedrooms and 3.0 bathrooms. This home is located at 6784 Dawson Rd, Cincinnati, OH 45243.
Based on current rates
Est. 6.24% rate · 30yr fixed · $414,240 loan
Full calculator →Key facts and listing details
10 categories of property features
2 rooms detailed
Walk In Closet
Family Room
Market data and value estimates
3 schools rated nearby
Cincinnati, OH, 45243
18 events
24 years of records
Local context around this listing
Cincinnati, OH • Hamilton County
Nearby cities
Nearby zip codes
No obligation · Same-day response