Loading...

Tumwater, WA, 98512 • 98512 • Thurston County
$262/sqft
4Beds
3Baths
2,445Sqft
0.11 acLot
2023Built
Tumwater
98512
Outdoor Living
Ceramic Tile · Wall to Wall Carpet · Bath Off Primary · Ceiling Fan(s) · Double Pane/Storm Window · Dining Room · French Doors · Vaulted Ceiling(s) · Walk-In Closet(s) · Walk-In Pantry · Fireplace · Water Heater
1 Fireplace
Gas · Main Level: 1 · Fireplace
2-Car Garage
Attached Garage
Ceramic Tile & Engineered Hardwood Floors
Quality flooring throughout
Demand and pricing signals for this listing
6 views
People checking out this listing
999 days on market
Established listing
$262/sqft
Price per square foot
Single Family · Built 2023
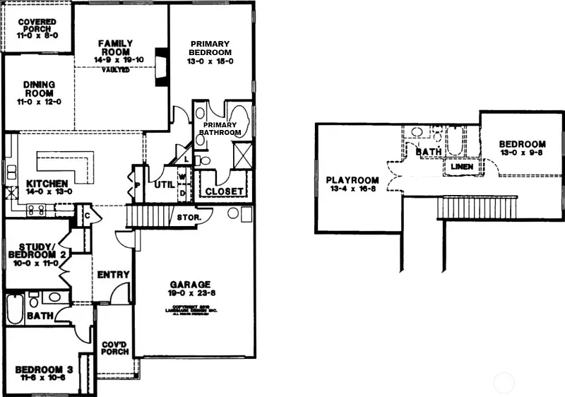
New construction by Rob Rice Homes in Skyview Estates! The affordable luxury you have been looking for! Main floor primary Pine Plan won't last long. Super kitchen featuring "Cocoa" stained Maple cabinetry, quartz counters w/full tile splash, gas stove with micro/oven combo & one level eating bar offering great counter space! Engineered hardwood through entry, kitchen & dining room. Contemporary styling w/white painted millwork & brushed nickel fixtures. The upper level has a large bonus room w/French doors, a full bath & bedroom-perfect get-away/suite space! Covered patio, fenced & fully landscaped. Energy efficient features include solar panels, heat pump & electric hot water heat pump. Close to I-5, Costco, Home Depot & Schools!
Based on current rates
Est. 6.12% rate · 30yr fixed · $511,960 loan
Full calculator →Key facts and listing details
13 categories of property features
13 rooms detailed
Master Bedroom
MainBedroom
SecondBedroom
MainBedroom
MainBathroom Full
SecondBathroom Full
MainMarket data and value estimates
3 schools rated nearby
Tumwater, WA, 98512
5 events
3 years of records
Local context around this listing
Tumwater, WA • Thurston County
Nearby neighborhoods
Nearby cities
Nearby zip codes
Based on information submitted to the MLS GRID as of 2026-04-07 14:23:56 PDT. All data is obtained from various sources and may not have been verified by broker or MLS GRID. Supplied Open House Information is subject to change without notice. All information should be independently reviewed and verified for accuracy. Properties may or may not be listed by the office/agent presenting the information. [Click here for more information](/mls-disclaimers/#39)
No obligation · Same-day response