Loading...

Chicago, IL, 60631 • Edison Park • Cook County
$320/sqft
3Beds
2Baths
1,700Sqft
Hardwood Floors
Quality flooring throughout
Demand and pricing signals for this listing
1 views
People checking out this listing
2975 days on market
Established listing
$320/sqft
Price per square foot
Single Family
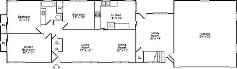
Truly Large Sprawling Ranch! All brick, Hardwood Floors, First Floor Family Room, Finished Basement, Attached Garage and 9 blocks to the Heart of Edison Park. 7551 N Oketo Ave is a classic mid century ranch-style home situated in the well-regarded Edison Park area. It features a comfortable layout with 3 bedrooms and 2 baths, functional living space including a full basement, and practical in home amenities like AC and laundry. Its standout draw is the community setting with top-rated elementary schools, family-friendly vibes, and strong neighborhood identity.
Based on current rates
Est. 6.20% rate · 30yr fixed · $434,800 loan
Full calculator →Key facts and listing details
7 categories of property features
Market data and value estimates
2 schools rated nearby
Chicago, IL, 60631
5 events
25 years of records
Local context around this listing
Chicago, IL • Cook County
Nearby neighborhoods
Nearby cities
Nearby zip codes
No obligation · Same-day response