Loading...

Bonney Lake, WA, 98391 • 98391 • Pierce County
$276/sqft
4Beds
3Baths
2,810Sqft
0.12 acLot
2024Built
Territorial Views
Territorial
Contemporary Style
Built 2024 · 2 years of history
Tehaleh
98391
Outdoor Living
Bath Off Primary · Ceramic Tile · Fireplace · Hardwood · Laminate · Walk-In Closet(s) · Wall to Wall Carpet · Water Heater
1 Fireplace
Gas · Main Level: 1 · Fireplace
2-Car Garage
Attached Garage
Ceramic Tile & Hardwood Floors
Quality flooring throughout
Demand and pricing signals for this listing
2 views
People checking out this listing
476 days on market
Established listing
$276/sqft
Price per square foot
Single Family · Built 2024
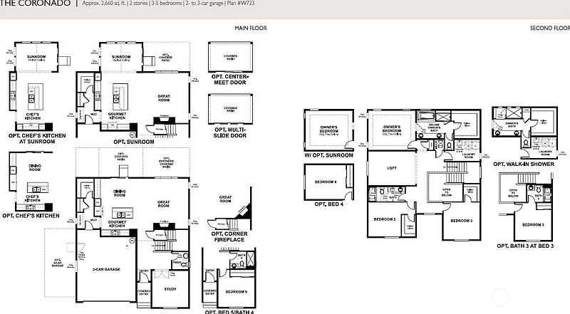
The main floor of the inviting Coronado plan offers an open layout with a spacious great room, an impressive gourmet kitchen and a dining area. A main floor bedroom with an adjacent 3/4 bathroom. Upstairs, you'll find a laundry, a versatile loft, and three more generous bedroom, including a lavish owner's suite with an expansive walk-in closet and a deluxe master bathroom. This home is being built with a bright, open and airy sunroom. Large exterior covered patio. Ideally located in Tehaleh's newest division Glacier Pointe. Ask about special financing! If you are working with a licensed broker please register your broker on your first visit to the community per our site registration policy.
Standout features identified
Our analysis highlights versatile loft, large exterior covered patio, and deluxe master bathroom as key attractions of this home.
Based on current rates
Est. 6.18% rate · 30yr fixed · $619,992 loan
Full calculator →Key facts and listing details
13 categories of property features
12 rooms detailed
Master Bedroom
SecondBedroom
SecondBedroom
SecondBedroom
MainBathroom Three Quarter
MainBathroom Full
SecondMarket data and value estimates
3 schools rated nearby
Bonney Lake, WA, 98391
7 events
Local context around this listing
Bonney Lake, WA • Pierce County
Nearby cities
Nearby zip codes
Based on information submitted to the MLS GRID as of 2026-04-07 02:19:20 PDT. All data is obtained from various sources and may not have been verified by broker or MLS GRID. Supplied Open House Information is subject to change without notice. All information should be independently reviewed and verified for accuracy. Properties may or may not be listed by the office/agent presenting the information. [Click here for more information](/mls-disclaimers/#39)
No obligation · Same-day response