Loading...

Tigard, OR, 97224 • Durham Road • Washington County
$254/sqft
4Beds
3Baths
2,772Sqft
2018Built
Craftsman Style
Built 2018 · 8 years of history
Mangold
Durham Road
Outdoor Living
Covered Patio · Porch
1 Fireplace
Gas
2-Car Garage
Driveway · On Street · Garage Door Opener · Attached
Premium Finishes
Walk-In Closet(s) · Granite
Wood Floors
Quality flooring throughout
Demand and pricing signals for this listing
1 views
People checking out this listing
2765 days on market
Established listing
$254/sqft
Price per square foot
Single Family · Built 2018
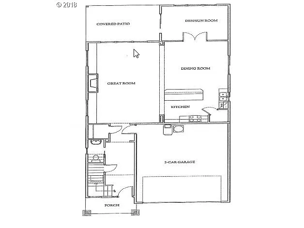
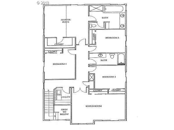
Beautiful new 4 bedroom home with additional Bonus room. Spacious Great Room and open Kitchen with Granite counters and wood floors. Large Dining area that opens to Sun room and Covered patio.Master suit with vaulted ceiling and gorgeous bathroom. Soaker tub and duel sinks. Many options to choose from. Proposed Construction, Photos are from previously finished home.
Based on current rates
Est. 6.46% rate · 30yr fixed · $563,040 loan
Full calculator →Key facts and listing details
14 categories of property features
7 rooms detailed
Master Bedroom
UpperBedroom2
UpperBedroom3
UpperBedroom4
UpperDining Room
MainFamily Room
MainMarket data and value estimates
3 schools rated nearby
Tigard, OR, 97224
1 event
Local context around this listing
Tigard, OR • Washington County
Nearby neighborhoods
Nearby cities
Nearby zip codes
The content relating to real estate for sale on this web site comes in part from the IDX program of the RMLS™ of Portland, Oregon. Real estate listings held by brokerage firms other than Zillow, Inc. are marked with the RMLS™ logo, and detailed information about these properties includes the names of the listing brokers. Listing content is copyright © 2026 RMLS™, Portland, Oregon. This content last updated on 2026-04-01 14:54:14 PDT. Some properties which appear for sale on this web site may subsequently have sold or may no longer be available. All information provided is deemed reliable but is not guaranteed and should be independently verified.
No obligation · Same-day response