Loading...

Everett, WA, 98201 • Lowell • Snohomish County
$380/sqft
4Beds
3Baths
1,910Sqft
0.07 acLot
2016Built
Territorial Views
Territorial
Craftsman Style
Built 2016 · 10 years of history
Lowell
Lowell
Outdoor Living
Forced Air · Hardwood · Wall to Wall Carpet · Bath Off Primary · Double Pane/Storm Window · Dining Room · FirePlace · Water Heater
1 Fireplace
Gas · Main Level: 1 · FirePlace
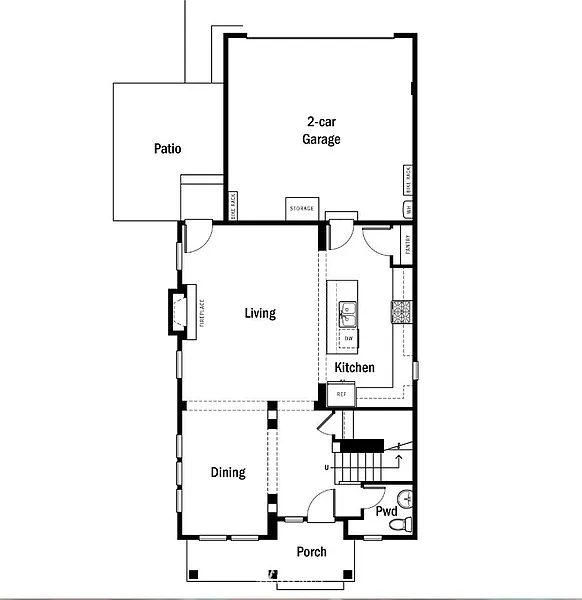
2-Car Garage
Garage - Attached
Hardwood Floors
Quality flooring throughout
Demand and pricing signals for this listing
1 views
People checking out this listing
3406 days on market
Established listing
$380/sqft
Price per square foot
Single Family · Built 2016
Polygon's Newest Community is HERE! The Ebey offers 4 bed, 2½ bath with an amazing open floor plan. Home also includes two car garage with storage, your very own bike racks and a fully fenced yard! Overlook Riverfront offers parks, future retail, trails along the Snohomish River and MUCH more! Ask us about the most comprehensive service and warranty programs in the industry. We want you to feel assured that should the unexpected happen we are here to serve your needs from day one and far beyond.
Based on current rates
Est. 6.12% rate · 30yr fixed · $580,000 loan
Full calculator →Key facts and listing details
13 categories of property features
Market data and value estimates
3 schools rated nearby
Everett, WA, 98201
1 event
Local context around this listing
Everett, WA • Snohomish County
Nearby neighborhoods
Nearby cities
Nearby zip codes
Based on information submitted to the MLS GRID as of 2026-04-07 17:29:01 PDT. All data is obtained from various sources and may not have been verified by broker or MLS GRID. Supplied Open House Information is subject to change without notice. All information should be independently reviewed and verified for accuracy. Properties may or may not be listed by the office/agent presenting the information. [Click here for more information](/mls-disclaimers/#39)
No obligation · Same-day response