Loading...

Port Orchard, WA, 98367 • 98367 • Kitsap County
$291/sqft
2Beds
2Baths
2,207Sqft
0.11 acLot
2018Built
Craftsman Style
Built 2018 · 8 years of history
McCormick
98367
Outdoor Living
Forced Air · High Efficiency - 90%+ · Wall to Wall Carpet · Laminate · Bath Off Primary · WalkInPantry · Walk-In Closet(s) · FirePlace · Water Heater
1 Fireplace
Gas · Main Level: 1 · FirePlace
2-Car Garage
Garage - Attached
Demand and pricing signals for this listing
2 views
People checking out this listing
2710 days on market
Established listing
$291/sqft
Price per square foot
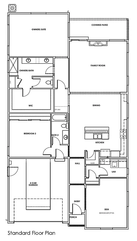
Single Family · Built 2018
The Penelope by Century Communities, a craftsman style rambler, featuring 2br/1.75 ba with den. Located in the highly desirable community of McCormick in Port Orchard. This home features an inviting outdoor space w/patio and front and rear landscaping. Interior features beautiful slab quartz counter-tops and stainless steel appliances, wall mount oven, 36" gas range and walk-in pantry. Just a short drive to all your needs and only a 30 minute ferry boat ride away from downtown Seattle.
Based on current rates
Est. 6.12% rate · 30yr fixed · $513,280 loan
Full calculator →Key facts and listing details
12 categories of property features
7 rooms detailed
Master Bedroom
MainBedroom
MainBathroom Full
MainBathroom Three Quarter
MainDining Room
MainFamily Room
MainMarket data and value estimates
3 schools rated nearby
Port Orchard, WA, 98367
1 event
Local context around this listing
Port Orchard, WA • Kitsap County
Nearby neighborhoods
Nearby cities
Nearby zip codes
Based on information submitted to the MLS GRID as of 2026-04-07 23:44:22 PDT. All data is obtained from various sources and may not have been verified by broker or MLS GRID. Supplied Open House Information is subject to change without notice. All information should be independently reviewed and verified for accuracy. Properties may or may not be listed by the office/agent presenting the information. [Click here for more information](/mls-disclaimers/#39)
No obligation · Same-day response