Loading...

Lynnwood, WA, 98087 • 98087 • Snohomish County
$393/sqft
4Beds
3Baths
2,688Sqft
0.1 acLot
2015Built
Territorial Views
Territorial
Mukilteo
98087
Outdoor Living
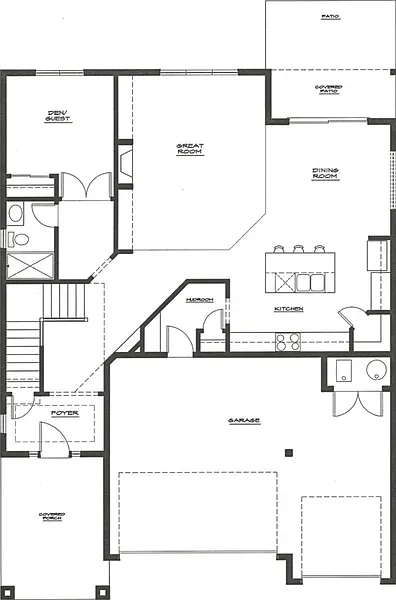
Forced Air · High Efficiency - 90%+ · Tankless Water Heater · Ceramic Tile · Hardwood · Wall to Wall Carpet · Bath Off Primary · Double Pane/Storm Window · Dining Room · French Doors · WalkInPantry · Walk-In Closet(s) · FirePlace · Water Heater
1 Fireplace
Gas · Main Level: 1 · FirePlace
3-Car Garage
Garage - Attached
Ceramic Tile & Hardwood Floors
Quality flooring throughout
Demand and pricing signals for this listing
2 views
People checking out this listing
3721 days on market
Established listing
$393/sqft
Price per square foot
Single Family · Built 2015
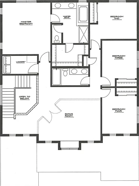
New Construction Homes by Summerlyn Group located at Azi Lee Estates! The 2688 sq. ft home showcases open floor plan w/crown molding, wainscoting, white painted millwork and hardwood floors. Great room w/gas fireplace that flows into Kitchen w/granite slab counters, SS appliances, large center island and pantry. Den/bdrm suite, 3/4 bath completes the main floor. Spacious master bedroom suite w/walk-in closet. 3 more bedrooms, bonus room, full bath & laundry upstairs. Mukilteo Schools!
Based on current rates
Est. 6.12% rate · 30yr fixed · $845,600 loan
Full calculator →Key facts and listing details
14 categories of property features
14 rooms detailed
Master Bedroom
UpperBedroom
UpperBedroom
UpperBedroom
UpperBathroom Full
UpperBathroom Full
UpperMarket data and value estimates
3 schools rated nearby
Lynnwood, WA, 98087
1 event
Local context around this listing
Lynnwood, WA • Snohomish County
Nearby neighborhoods
Nearby cities
Nearby zip codes
Based on information submitted to the MLS GRID as of 2026-04-07 17:53:54 PDT. All data is obtained from various sources and may not have been verified by broker or MLS GRID. Supplied Open House Information is subject to change without notice. All information should be independently reviewed and verified for accuracy. Properties may or may not be listed by the office/agent presenting the information. [Click here for more information](/mls-disclaimers/#39)
No obligation · Same-day response