Loading...

Chicago, IL, 60626 • Rogers Park • Cook County
$239/sqft
Down payment assistance available
3Beds
3Baths
4,600Sqft
0.17 acLot
1915Built
American 4-Sq. Style
Built 1915 · 111 years of history
Outdoor Living
Deck · Porch · Patio
1 Fireplace
Wood Burning · Gas Starter · Living Room
Special Features
Workshop · Box Stalls
4-Car Garage
Garage Door Opener · Heated Garage · Yes · Garage Owned · Detached · Off Alley · Owned · Garage
Hardwood Floors
Quality flooring throughout
Just Listed
Listed Apr 10, 2026
Demand and pricing signals for this listing
81 views
People checking out this listing
7 saves
Buyers have saved this home
$239/sqft
Price per square foot
Single Family · Built 1915 · Historic
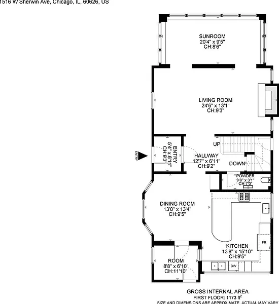
Prepare to be 'wowed'! Located just a few blocks from Lake Michigan on one of East Rogers Park's most beautiful streets. This home delivers modern amenities and recent updates through out, in a vintage setting with warm character. A side entry American Foursquare: allowing maximum interior, uninterrupted space with 3 levels of living and a full basement. The 1st floor features a bright enclosed multi-season porch overlooking tree-lined Sherwin, living room with fireplace, 1/2 bath and mud room. Fall in love with this enormous kitchen that boasts skylights and windows overlooking the rear yard! Tons of upgraded cabinetry, granite counters, island with space for bar stools, tiled backsplash and stainless appliances. The 2nd floor has 3 generously sized bedrooms and 2 bathrooms: including a lovely primary suite with a walk-in closet and bathroom with vanity and large shower. The 3rd floor offers a loft space ready to use for another living area, office or convert into 2 bedrooms. The home is dual zoned and both furnaces/a/c's were repalced in last 2 years. This charming home sits on a double wide and extra deep lot (50'x 150') and has an incredible 40', 4 CAR, heated brick garage has its own HVAC and partially finished attic space ideal for a work room. The alley side garage apron has room for two additional parked cars making for a total of SIX parking spaces! This a dream come true for anyone needing an auxiliary building for a home shop, car collecting, kids hangout or small business. This fabulous property is steps to restaurants, pubs, coffee shops, the lakefront; immediate access to the Red Line and buses on Sheridan. Minutes to Lake Shore Drive, Andersonville and Downtown Evanston. A wonderful opportunity and a very special home.
Standout features identified
Our analysis highlights side entry american foursquare, upgraded cabinetry, and granite counters as key attractions of this home.
Based on current rates
Est. 6.44% rate · 30yr fixed · $880,000 loan
Full calculator →Key facts and listing details
14 categories of property features
19 rooms detailed
Master Bedroom
SecondBedroom2
SecondBedroom3
SecondBedroom4
Other
Other
Market data and value estimates
2 schools rated nearby
Chicago, IL, 60626
12 events
25 years of records
Local context around this listing
Chicago, IL • Cook County
Nearby neighborhoods
Nearby cities
Nearby zip codes
Based on information submitted to the MLS GRID as of 2026. All data is obtained from various sources and may not have been verified by broker or MLS GRID. Supplied Open House Information is subject to change without notice. All information should be independently reviewed and verified for accuracy. Properties may or may not be listed by the office/agent presenting the information. [Click here for more information](/mls-disclaimers/#17)
No obligation · Same-day response