Loading...

Atlanta, GA, 30315 • Mechanicsville • Fulton County
-$5,000 since Feb 25, 2026
0.19 acLot
On the None
No Dock Or Boathouse
Mechanicsville
Mechanicsville
Demand and pricing signals for this listing
94 views
People checking out this listing
8 saves
Buyers have saved this home
92 days on market
Established listing
Lot
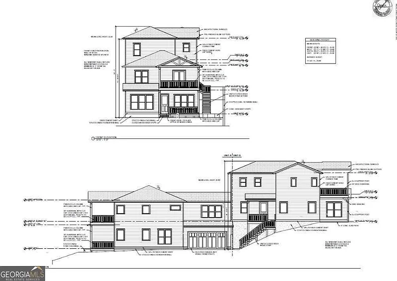
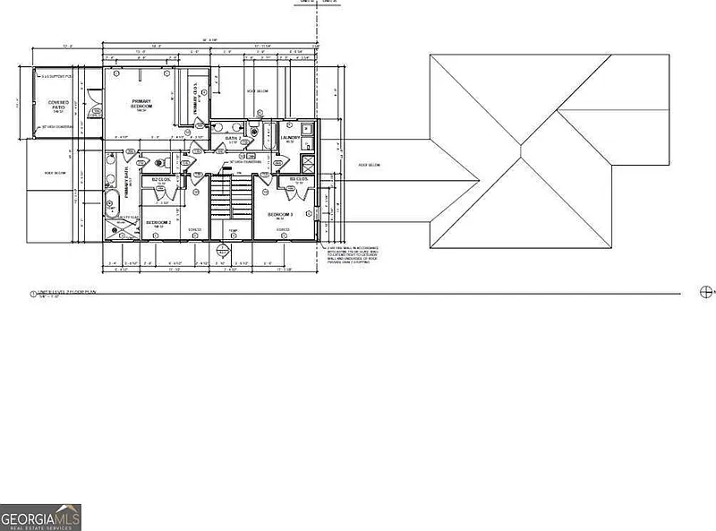
Located in Mechanicsville, this 50' x 180' lot comes with approved duplex plans. The lot is cleared and zoned SPI-18 SA6. Just blocks from the GSU stadium, Summerhill's Publix-anchored shopping center, and the restaurants and breweries along Georgia Avenue. Quick access to I-75/85 offers strong connectivity. A straightforward opportunity for development in a growing area.
Based on current rates
Est. 6.62% rate · 30yr fixed · $131,920 loan
Full calculator →Key facts and listing details
4 categories of property features
Market data and value estimates
3 schools rated nearby
Atlanta, GA, 30315
11 events
18 years of records
Local context around this listing
Atlanta, GA • Fulton County
Nearby neighborhoods
Nearby cities
Nearby zip codes
The data relating to real estate for sale on this web site comes in part from the Broker Reciprocity Program of GAMLS. All real estate listings are marked with the GAMLS Broker Reciprocity thumbnail logo and detailed information about them includes the name of the listing brokers. The broker providing these data believes them to be correct, but advises interested parties to confirm them before relying on them in a purchase decision. Copyright 2026 GAMLS. All rights reserved.
No obligation · Same-day response