Loading...

Hyattsville, MD, 20783 • 20783 • Prince Georges County
$236/sqft
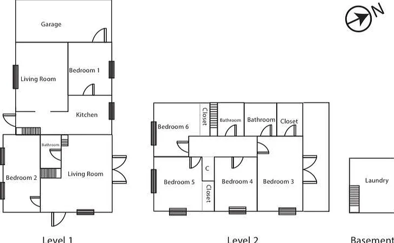
6Beds
3Baths
2,184Sqft
0.23 acLot
1972Built
Hardwood Floors
Quality flooring throughout
Demand and pricing signals for this listing
1 views
People checking out this listing
2929 days on market
Established listing
$236/sqft
Price per square foot
Single Family · Built 1972
Click here for 3D tour: Gorgeous and spacious single-family home with 6 Bedroom, 3 Full Bath near the University of Maryland College Park. Each room is furnished with bed, desk, chair, and lamp. Preferred UMD students or alumni. Near business school of UMD. Less than 7 minutes driving to the campus. Newly Renovated, with wood floors. Rent includes utilities. Rent negotiable if lease together. Master bedroom: $840 Upper level room 1: $650 Upper level room 2: $680 Upper level room 3: $680 First floor room 1: $680 First floor room 2: $540 Wechat: Winnyzhang 12 month or more
Based on current rates
Est. 6.05% rate · 30yr fixed · $412,160 loan
Full calculator →Key facts and listing details
8 categories of property features
Market data and value estimates
3 schools rated nearby
Hyattsville, MD, 20783
7 events
25 years of records
Local context around this listing
Hyattsville, MD • Prince Georges County
Nearby cities
Nearby zip codes
No obligation · Same-day response