Loading...

New Brunswick, NJ, 08901 • 08901 • Middlesex County
$195/sqft
Down payment assistance available
4Beds
2Baths
2,044Sqft
0.06 acLot
1920Built
Character Home
Built 1920 · 106 years of history
This home is getting attention
Listed 22 days ago · 2,136 views · 51 saves
Demand and pricing signals for this listing
2,136 views
People checking out this listing
51 saves
Buyers have saved this home
22 days on market
Recently listed
$195/sqft
Price per square foot
Multi Family · Built 1920 · Historic
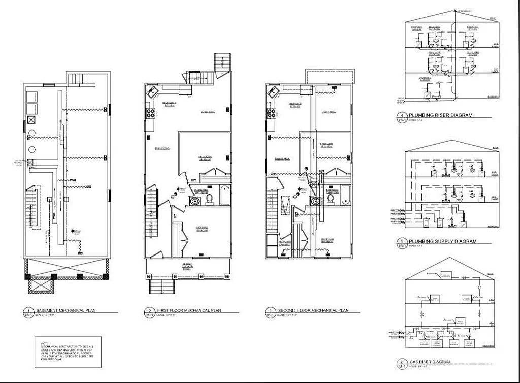
Investor Opportunity: Approved plans in place to rebuild a two-family property with 2 bedrooms and 1 full bathroom per unit (4 beds / 2 baths total), featuring a full walkout basement and attic storage. The home sits on the existing foundation with partial first-floor framing completed, reducing construction costs and increasing equity potential on the after-repair value. Located in a high-demand rental area near Robert Wood Johnson University Hospital, Rutgers University, transportation, and shopping, this is an ideal project for investors seeking strong rental demand, appreciation, and upside through a buy-and-hold or resale strategy. Approved plans in place with cost savings from the existing structure, a prime rental location, and strong upside, making this a turnkey rebuild ideal for buy-and-hold or resale with margin built in.
Standout features identified
Our analysis highlights full walkout basement, attic storage, and partial first-floor framing completed as key attractions of this home.
Based on current rates
Est. 6.18% rate · 30yr fixed · $319,200 loan
Full calculator →Key facts and listing details
7 categories of property features
Market data and value estimates
3 schools rated nearby
New Brunswick, NJ, 08901
6 events
25 years of records
Local context around this listing
New Brunswick, NJ • Middlesex County
Nearby neighborhoods
Nearby cities
Nearby zip codes
The data relating to real estate for sale on this web-site comes in part from the Internet Listing Display database of the CENTRAL JERSEY MULTIPLE LISTING SYSTEM, INC. Real estate listings held by brokerage firms other than this site-owner are marked with the ILD logo. The CENTRAL JERSEY MULTIPLE LISTING SYSTEM, INC does not warrant the accuracy, quality, reliability, suitability, completeness, usefulness or effectiveness of any information provided. Copyright 2026, CENTRAL JERSEY MULTIPLE LISTING SYSTEM, INC All rights reserved The CENTRAL JERSEY MULTIPLE LISTING SYSTEM, INC retains all rights, title and interest in and to its trademarks, service marks and copyrighted material. The information being provided is for consumers' personal, non-commercial use and may not be used for any purpose other than to identify properties the consumer may be interested in purchasing or renting.
No obligation · Same-day response