Loading...

Washington, DC, 20016 • Kent • District of Columbia
$626/sqft
7Beds
8Baths
7,182Sqft
0.13 acLot
2026Built
Contemporary Style
Contemporary architecture
Kent
Kent
Special Features
Above Grade · Below Grade
1-Car Garage
Garage Faces Front · Inside Entrance · Oversized · Storage · Attached Carport · Attached
This home is getting attention
Listed 72 days ago · 354 views · 15 saves
Demand and pricing signals for this listing
354 views
People checking out this listing
15 saves
Buyers have saved this home
72 days on market
Established listing
$626/sqft
Price per square foot
Single Family · Built 2026
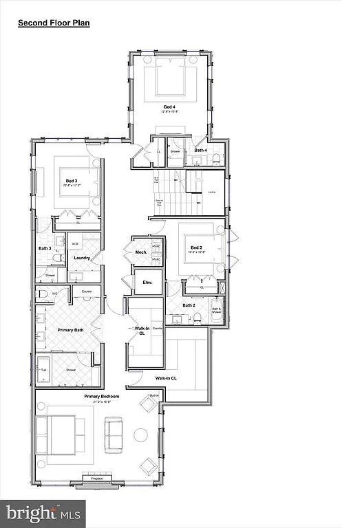
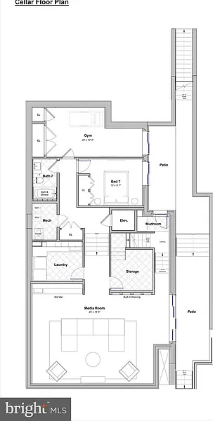
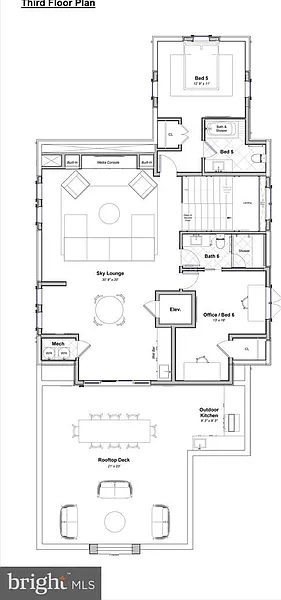
A modern Parisian-inspired stately residence defined by classical proportions and refined contemporary detailing, The Highgate is a newly constructed, custom-crafted home in one of Washington, DC’s most prestigious and tightly held neighborhoods. Ideally sited on a quiet, tree-lined street in Kent, this seven-bedroom, seven-and-one-half-bath residence is fully finished and designed and developed by Silverstone Group. This true ground-up build offers approximately 7,182 square feet across four expansive levels. The exterior is timeless and restrained, finished in white stucco with custom fabricated gutters and downspouts and a premium EcoStar synthetic slate roof. Marvin Ultimate and Elevate windows flood the interiors with natural light and frame treetop views. Ceiling heights define the architecture throughout: approximately nine feet on the lower level, eleven feet on the main level, ten feet on the second level, and dramatic fourteen-foot ceilings on the top level. The great room rises to nearly fifteen feet, creating volume and quiet grandeur. The main level balances formal entertaining and everyday living, with formal living and dining rooms, a gracious entry foyer, and powder room. A stunning great room with gas fireplace flows into a chef’s kitchen with paneled Sub-Zero and Wolf appliances, fully custom cabinetry, and an oversized butler’s pantry. Glass doors open to a covered rear deck, roughed-in for a future outdoor kitchen, with stairs to a fully leveled and professionally landscaped backyard. The second level features four ensuite bedrooms, including a luxurious primary suite with a gas fireplace. The spa-caliber primary bath includes heated marble floors, dual showerheads, soaking tub, double vanity, dedicated makeup, and Toto smart toilet. A second laundry room is also located on this level. The top level offers a dramatic media room with fourteen-foot ceilings and wet bar, two additional ensuite bedrooms, and direct access to a large rooftop terrace with TimberTech decking, outdoor kitchen, and unobstructed treetop views extending into Virginia. The lower level offers exceptional versatility with a media lounge and wet bar, gym, storage room, mudroom, full-size laundry room, and additional bedroom, ideal for guests, recreation, or extended stays. Interior finishes include French white oak sand-in-place flooring, extensive custom millwork, bespoke cabinetry, custom doors with Baldwin hardware, and marble bathrooms throughout. Waterworks fixtures are featured in the primary bath, powder room, and kitchen, with Brizo fixtures elsewhere. Designer lighting and three fireplaces anchor the great room, formal living room, and primary suite. The home is engineered for performance with two Carrier HVAC systems and four independent zones, energy recovery ventilator, and smart thermostats. The residence is fully sprinklered and includes all new water, sewer, electrical, and gas systems. An elevator shaft is provided, with installation available at additional cost. Technology is comprehensive and future-ready, with Cat6 and coax wiring in every room, in-ceiling Wi-Fi access points, over sixty Klipsch in-ceiling speakers connected to Sonos, smart control tablets, and a seven-camera exterior CCTV system. A private front motor court accommodates two vehicles, complemented by an oversized one-car garage with EV charger. The rear yard includes a fully integrated rain and stormwater retention system, irrigation, and landscape lighting. The Highgate represents a rare offering in Kent: a newly constructed, architecturally disciplined residence where classical proportion, modern systems, and refined craftsmanship converge. Pictures of front and rear are renderings.
Based on current rates
Est. 6.50% rate · 30yr fixed · $3,596,000 loan
Full calculator →Key facts and listing details
9 categories of property features
1 room detailed
Half Bath
MainMarket data and value estimates
3 schools rated nearby
Washington, DC, 20016
5 events
16 years of records
Local context around this listing
Washington, DC • District of Columbia
Nearby neighborhoods
Nearby cities
Nearby zip codes
The data relating to real estate for sale on this website appears in part through the BRIGHT Internet Data Exchange program, a voluntary cooperative exchange of property listing data between licensed real estate brokerage firms, and is provided by BRIGHT through a licensing agreement. Listing information is from various brokers who participate in the Bright MLS IDX program and not all listings may be visible on the site. The property information being provided on or through the website is for the personal, non-commercial use of consumers and such information may not be used for any purpose other than to identify prospective properties consumers may be interested in purchasing. Some properties which appear for sale on the website may no longer be available because they are for instance, under contract, sold or are no longer being offered for sale. Property information displayed is deemed reliable but is not guaranteed. Copyright 2026 Bright MLS, Inc. [Click here for more information](/mls-disclaimers/#5632)
No obligation · Same-day response