Loading...

Philadelphia, PA, 19121 • Strawberry Mansion • Philadelphia County
2Beds
1Baths
600Sqft
Demand and pricing signals for this listing
210 days on market
Established listing
Apartment
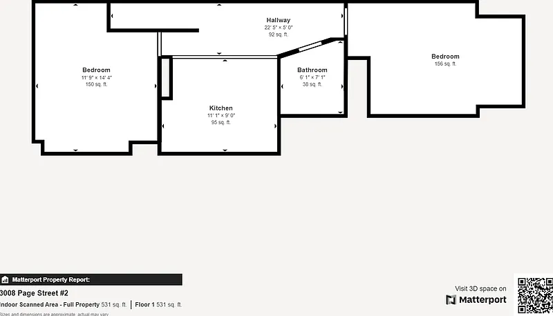
This 540 sq. ft. apartment in Philadelphia offers a blend of historic charm and modern updates. The space features two bedrooms, including a generous 170 sq. ft. primary bedroom, and one bathroom. Throughout the apartment, rich hardwood flooring creates a warm, inviting atmosphere. A standout feature is the exposed brick wall, adding character and texture to the living area. The bathroom has been updated with contemporary fixtures and marble-like tiling, providing a sleek contrast to the apartment's vintage elements. Large windows in the bedrooms allow for ample natural light, while cream-colored window treatments offer privacy and light control. The neutral gray wall color throughout creates a cohesive look and serves as a perfect backdrop for personal decor. A hallway connects the rooms, enhancing the flow of the space. The compact layout maximizes the available square footage, making efficient use of the single-floor design. This apartment successfully marries historical architectural elements with modern comforts, creating a unique urban living space. Qualifications / General Screening Criteria: Rental applications must be complete, correct and verified. Gross monthly income must provable and be at least 3 times rent or tenant must have a housing choice voucher. Applicants must have a proven history of on-time rental payments not including the COVID-19 emergency period. Applicants must have a good relevant credit history or tenant must have a housing choice voucher. Applicants must have no evictions in the last 4 years except during the COVID-19 emergency period. _______________________________________________ Consumer Notice - Real Estate Management Advisors, LLC in an exclusive agent of the landlord. Real Estate Management Advisors, LLC - REMA Licensed Real Estate Broker Property Manager Servicing Commercial & Residential Properties in the Philadelphia area. Not the one for you?
Standout features identified
Our analysis highlights contemporary fixtures, historic charm, and modern updates as key attractions of this home.
Key facts and listing details
3 categories of property features
Market data and value estimates
2 schools rated nearby
Philadelphia, PA, 19121
6 events
Local context around this listing
Philadelphia, PA • Philadelphia County
Nearby neighborhoods
Nearby cities
Nearby zip codes
No obligation · Same-day response