Loading...

Philadelphia, PA, 19144 • Germantown Southwest • Philadelphia County
0.02 acLot
Germantown
Germantown Southwest
Demand and pricing signals for this listing
1 views
People checking out this listing
773 days on market
Established listing
Lot
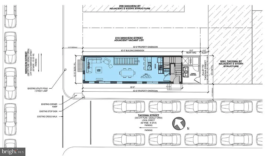
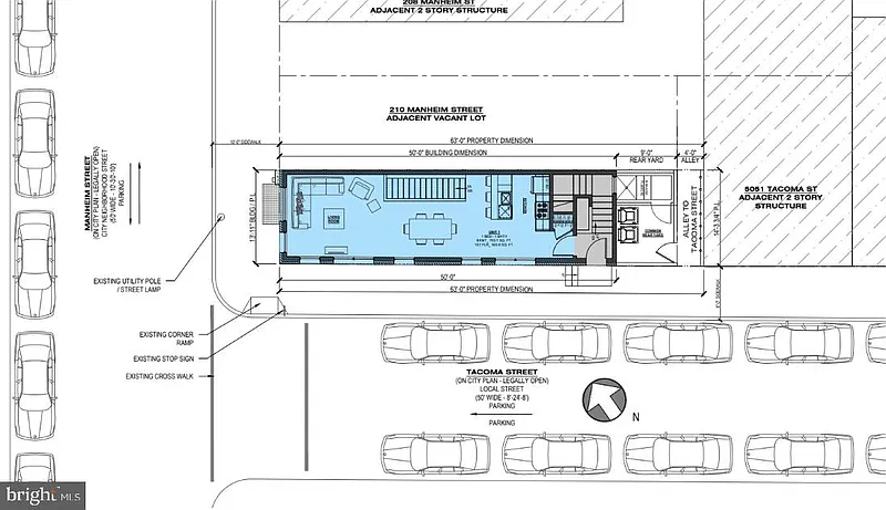
DEVELOPER ALERT! Vacant corner lot in a desirable section of Germantown with zoning approved to build a triplex (3-unit) multifamily property. Beautifully-executed plans and renderings completed by local, well-known architectural firm Harman Deutsch Ohler. Excellent opportunity to build a cash-flowing asset in an appreciating submarket. Zoning documents available upon request. Drive by today!
Based on current rates
Est. 6.75% rate · 30yr fixed · $40,000 loan
Full calculator →Key facts and listing details
Market data and value estimates
3 schools rated nearby
Philadelphia, PA, 19144
7 events
Local context around this listing
Philadelphia, PA • Philadelphia County
Nearby neighborhoods
Nearby cities
Nearby zip codes
The data relating to real estate for sale on this website appears in part through the BRIGHT Internet Data Exchange program, a voluntary cooperative exchange of property listing data between licensed real estate brokerage firms, and is provided by BRIGHT through a licensing agreement. Listing information is from various brokers who participate in the Bright MLS IDX program and not all listings may be visible on the site. The property information being provided on or through the website is for the personal, non-commercial use of consumers and such information may not be used for any purpose other than to identify prospective properties consumers may be interested in purchasing. Some properties which appear for sale on the website may no longer be available because they are for instance, under contract, sold or are no longer being offered for sale. Property information displayed is deemed reliable but is not guaranteed. Copyright 2026 Bright MLS, Inc. [Click here for more information](/mls-disclaimers/#5632)
No obligation · Same-day response