Loading...

Portland, OR, 97239 • Homestead • Multnomah County
1Baths
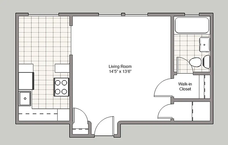
435Sqft
City View Views
City View
Hardwood & Tile Floors
Quality flooring throughout
Demand and pricing signals for this listing
1 views
People checking out this listing
414 days on market
Established listing
Apartment
First Month Free Rent or $800 GC! #301 ~ Delightful 1930s Studio on Marquam Hill, Near OHSU! - Marquam Manor is a 1930's charmer designed in the Art Deco style. Located above the City on Marquam Hill, this historic classic is conveniently located near OHSU's Medical and Dental schools, as well as the West Hills. Fairmount's running loop is nearby and it's a quick ride on the tram to Portland's riverfront. This charming Studio flat offers hardwood floors, high ceilings and a walk-in closet. Original hex tile flooring, black & white accents as well as glass hutches are sweet features. Off-street parking is an option. First month free rent or $800 Visa GC with signed 13 month lease! Virtual Tours Available! Contact information: Non-smoking property, Cats welcome Pet Deposit is $250 Pet Rent is $40/month Lease term: 1 year Utilities: * Electric, gas & cable paid by Tenant * Utility Charge additional $85/month covers: -water/sewer, garbage, hot water, common electric Application Fee: Tenant $65, Cosigner: $50, Non Financially Obligated Roommate: $0 Visit the following link for the rental criteria and evaluation process: Note: Photos shown may not be the actual apartment and some finishes may vary. Square footage may differ based on method used. This unit is not an Accessible Dwelling Unit. Equal Housing Opportunity
Standout features identified
Our analysis highlights walk-in closet, glass hutches, and high ceilings as key attractions of this home.
Key facts and listing details
4 categories of property features
Market data and value estimates
3 schools rated nearby
Portland, OR, 97239
3 events
Local context around this listing
Portland, OR • Multnomah County
Nearby neighborhoods
Nearby cities
Nearby zip codes
No obligation · Same-day response