Loading...

Toronto, ON, M5C2G3 • Church • Toronto Division
1Beds
1Baths
City View Views
City View
Demand and pricing signals for this listing
41 views
People checking out this listing
2 saves
Buyers have saved this home
33 days on market
Established listing
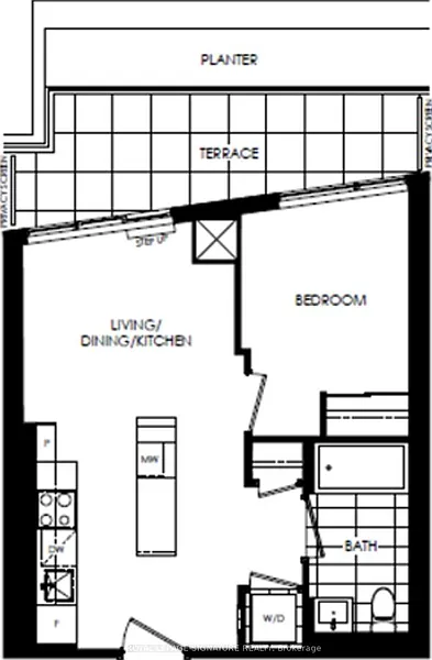
Apartment
Featuring One Bedroom Terrace suite at The Saint Condos. Lots of upgrades, large center island, high ceiling, walkout to large outdoor terrace space and great layout. Steps from TMU, Eaton Center, Transit, Financial district, St James Park, St Lawrence Market, and everything urban living has to offer. High Speed Internet included. Don't miss this suite.
Standout features identified
Our analysis highlights one bedroom terrace suite, large center island, and high ceiling as key attractions of this home.
Based on current rates
Est. 6.75% rate · 30yr fixed · $1,760 loan
Full calculator →Key facts and listing details
7 categories of property features
Market data and value estimates
Toronto, ON, M5C2G3
Local context around this listing
Toronto, ON • Toronto Division
Nearby neighborhoods
Nearby cities
Nearby zip codes
IDX information is provided exclusively for consumers’ personal, non-commercial use, that it may not be used for any purpose other than to identify prospective properties consumers may be interested in purchasing, and that data is deemed reliable but is not guaranteed accurate by the MLS®.
No obligation · Same-day response