Loading...

Amador City, CA, 95601 • 95601 • Amador County
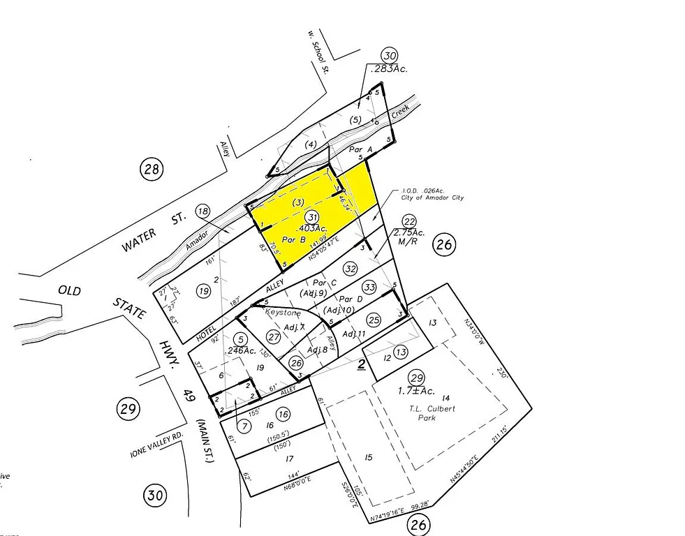
0.4 acLot
Demand and pricing signals for this listing
10 views
People checking out this listing
2 saves
Buyers have saved this home
87 days on market
Established listing
Lot
Discover the perfect location with small-town charm at this 0.40-acre creekside lot in downtown Amador City. Zoned R1 residential, this level parcel with rough grading is primed for development. All utilities (water, sewer, and electricity) are available. Wake up to scenic town views and unwind to the soothing sounds of the creek. Located just steps from aclaimed restaurants, boutique shops, and award-winning wineries, this property offers a rare chance to build in California's smallest incorporated city. Whether you're envisioning a custom home, vacation retreat, or investment property, this location delivers. Don't miss out! Opportunities like this are few and far between!
Based on current rates
Est. 6.44% rate · 30yr fixed · $176,000 loan
Full calculator →Key facts and listing details
4 categories of property features
Market data and value estimates
3 schools rated nearby
Amador City, CA, 95601
1 event
Local context around this listing
Amador City, CA • Amador County
Nearby cities
Nearby zip codes
No obligation · Same-day response