Loading...

Charlestown, IN, 47111 • 47111 • Clark County
$153/sqft
4Beds
3Baths
1,900Sqft
2026Built
Rock Springs
47111
Outdoor Living
Deck · Patio
2-Car Garage
Attached
This home is getting attention
Listed 47 days ago · 34 views · 4 saves
Demand and pricing signals for this listing
34 views
People checking out this listing
4 saves
Buyers have saved this home
47 days on market
Established listing
$153/sqft
Price per square foot
This home ranks in the top 33% of listings most likely to go under contract soon, based on market activity and demand signals.
Want the full market analysis?
Get the detailed selling prediction score, comparable sales data, and price trend forecast for this property.
Free · Delivered to your inbox in minutes
Single Family · Built 2026
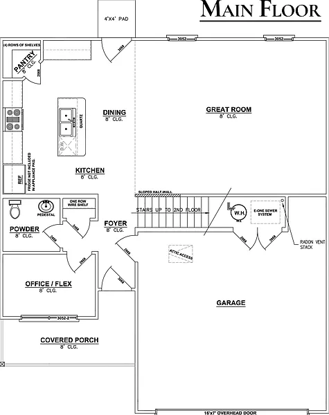
The "Emerald Bonus" floor plan is a 4 bed/2.5 bath home that offers plenty of space! Entering the home from the large covered front porch, a half bath, coat closet, and office/flex space are located just off the foyer. The kitchen is the central hub of the home, and includes a walk-in pantry, quartz countertops, and back door that walks out to the backyard. The spacious dining area and great room make up the rest of the main floor. On the 2nd floor, the primary suite is located at the front of the home and includes an en-suite bath and expanded walk-in closet. The primary bathroom offers a private water closet and walk-in shower. Two secondary bedrooms are split from the primary and face the back of the home. The spacious bonus room overlooks the front yard, and can serve as an additional bedroom, game room, nursery, or anything else you can dream up! The laundry room is also located on this floor, providing easy and convenient access. *This floor plan is only available in Rock Springs.* *Floor plans and exterior details subject to change. Our online floor plans and renderings are only intended to give a general indication of the proposed layout and amenities.*
Based on current rates
Est. 6.75% rate · 30yr fixed · $232,720 loan
Full calculator →Key facts and listing details
7 categories of property features
1 room detailed
Other
Market data and value estimates
3 schools rated nearby
Charlestown, IN, 47111
1 event
Local context around this listing
Charlestown, IN • Clark County
Nearby cities
Nearby zip codes
No obligation · Same-day response