Loading...

Pt Alberni, BC, V9Y6T8 • V9Y • Alberni-Clayoquot Regional District
0.56 acLot
Mountain(s) Views
Mountain(s)
Demand and pricing signals for this listing
29 views
People checking out this listing
1 saves
Buyers have saved this home
283 days on market
Established listing
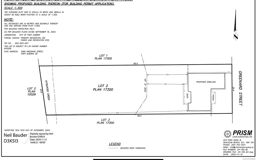
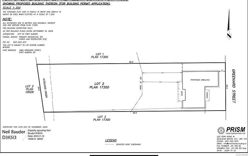
Lot
Tucked away on a quiet street, this expansive 0.57-acre city lot offers the perfect blend of urban convenience and natural tranquility. With direct access to a serene greenspace, you'll enjoy the privacy and beauty of a forested backdrop—right in your own backyard. Whether you envision building your dream home or investing in future development potential, this generously sized parcel presents great possibilities. Zoned for residential use (R) the property is primed for your plans. Just minutes to shopping, schools, and local trails, yet surrounded by mature trees and the peaceful sounds of nature. Opportunities like this don’t come up often—experience the best of both worlds! Buyers to confirm zoning and verifying their plans with the city planning department.
Standout features identified
Our analysis highlights generously sized parcel, surrounded by mature trees, and peaceful sounds of nature as key attractions of this home.
Based on current rates
Est. 6.75% rate · 30yr fixed · $239,920 loan
Full calculator →Key facts and listing details
2 categories of property features
Market data and value estimates
Pt Alberni, BC, V9Y6T8
3 events
Local context around this listing
Pt Alberni, BC • Alberni-Clayoquot Regional District
Nearby cities
Listing content Copyright 2026 Vancouver Island Real Estate Board & Victoria Real Estate Board. The above information is from sources deemed reliable, but should not be relied upon without independent verification.
No obligation · Same-day response