Loading...

Ball Ground, GA, 30107 • 30107 • Cherokee County
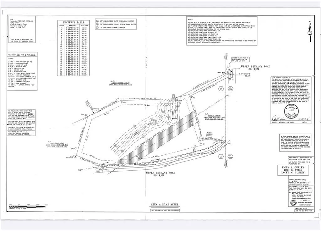
20.4 acLot
On the None
None
Scenic Views
Rural · Trees/Woods
None
30107
Demand and pricing signals for this listing
140 views
People checking out this listing
7 saves
Buyers have saved this home
258 days on market
Established listing
Lot
WOW! 20.42AC +/- IN CHEROKEE COUNTY! Great Location minutes north of Riverstone Pkwy/Canton Hwy. 5 in Ball Ground, GA. This property presents a Terrific Opportunity for a variety of uses—from building your Dream Home to creating a potential family compound or farm in the country, all while being close enough for the conveniences of Canton or the Charming Downtown Ball Ground! Public CCWSA Water and Amicola EMC at the road. Owners just recorded a 07/2025 NEW PLAT. Looking at the plat you can easily see where several homes/etc. could possibly be built by working around the easements. The builder could consider placing a spec home on the right side and then building houses on the left side of the stream/easements, possibly using a shared driveway that would allow each home to access it. SO MANY OPTIONS AND OPPORTUNITIES!!!!
Based on current rates
Est. 6.00% rate · 30yr fixed · $440,000 loan
Full calculator →Virtual Tour
Open in new tab ↗Loading virtual tour…
Key facts and listing details
7 categories of property features
Market data and value estimates
3 schools rated nearby
Ball Ground, GA, 30107
1 event
Local context around this listing
Ball Ground, GA • Cherokee County
Nearby cities
Nearby zip codes
Listings identified with the FMLS IDX logo come from FMLS and are held by brokerage firms other than the owner of this website. The listing brokerage is identified in any listing details. Information is deemed reliable but is not guaranteed. If you believe any FMLS listing contains material that infringes your copyrighted work please [click here](https://www.fmls.com/dmca) to review our DMCA policy and learn how to submit a takedown request. © 2026 First Multiple Listing Service, Inc. [Click here for more information](/mls-disclaimers/#30)
No obligation · Same-day response