Loading...

Sterling Heights, MI, 48314 • 48314 • Macomb County
$249/sqft
3Beds
4Baths
2,350Sqft
2025Built
Craftsman Style
Built 2025 · 1 years of history
Legacy Heights
Sidewalks · Street Lights · Private Entry
Outdoor Living
Patio
1 Fireplace
Electric
Premium Finishes
Walk-In Closet(s)
Hardwood & Wood & Ceramic Tile Floors
Quality flooring throughout
$250/mo HOA
Sidewalks · Street Lights · Private Entry · Fiber Optic Internet
Demand and pricing signals for this listing
199 views
People checking out this listing
6 saves
Buyers have saved this home
209 days on market
Established listing
$249/sqft
Price per square foot
Townhouse · Built 2025
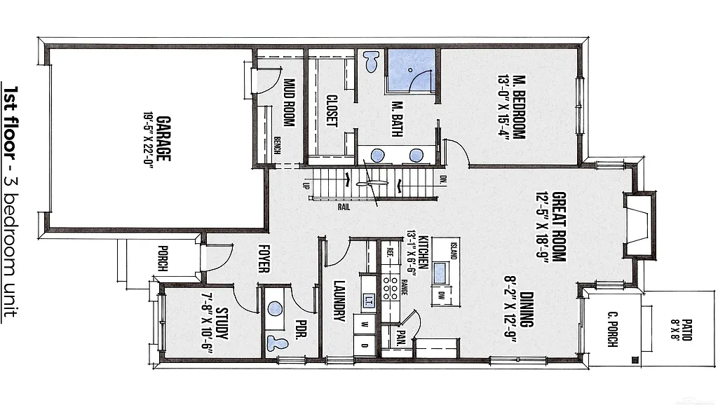
Will be Ready for March 1 2026 - Luxury Craftsman-Style Condo at Legacy Heights, Sterling Heights Step into comfort and style at Legacy Heights, Sterling Heights' premier duplex condominium community crafted by SunByrnes Properties & Construction. This beautifully designed Craftsman-style split-level condo offers a maintenance-free exterior and a host of high-end features perfect for your next home. Enjoy the open-concept floorplan with 9’ ceilings, highlighted by a grand foyer with an impressive staircase featuring wood handrails and iron spindles. A flex room with a trim feature wall and glass French doors provides a private space for work or relaxation. The great room boasts a gas linear fireplace and large picture windows that flood the space with natural light. The chef’s kitchen is a showstopper, featuring: • Shaker cabinets with 42” uppers • Quartz countertops and backsplash • Large entertainer’s island • Stainless Steel KitchenAid appliance suite • Walk-in pantry The adjacent dining nook comfortably seats eight. Retreat to the first-floor primary suite with a custom feature wall, spacious walk-in closet, and luxurious bathroom with double sinks, euro-style shower door, and ceramic tile finishes. Upstairs, find two additional bedrooms, each with its own private bathroom. Additional highlights: • Hardwood flooring in open living spaces; plush carpet in bedrooms • Modern trim package with flat panel doors and black hardware • Stylish lighting package and recessed lighting • 9’ basement with egress window and plumbing rough-in • 10' x 12' rear patio for outdoor enjoyment • Energy-efficient Marvin windows and durable Hardie Board construction This condo offers the perfect blend of luxury and convenience in a prime location with easy access to major commuting routes, shopping, and entertainment. Legacy Heights is located near 43739 Mound Rd, Sterling Heights, MI 48314. Don’t miss out on this rare opportunity to own a brand-new, high-end condo in a sought-after community.
Based on current rates
Est. 6.14% rate · 30yr fixed · $468,000 loan
Full calculator →Video Tour
Open in new tab ↗Loading video tour…
Key facts and listing details
13 categories of property features
9 rooms detailed
Master Bedroom
FirstBedroom1
FirstBedroom2
SecondBedroom3
SecondBathroom1
FirstBathroom2
SecondMarket data and value estimates
3 schools rated nearby
Sterling Heights, MI, 48314
2 events
Local context around this listing
Sterling Heights, MI • Macomb County
Nearby cities
Nearby zip codes
Source MLS: MiRealSource Provided through IDX via MiRealSource. Courtesy of MiRealSource Shareholder. Copyright MiRealSource. The information published and disseminated by MiRealSource is communicated verbatim, without change by MiRealSource, as filed with MiRealSource by its members. The accuracy of all information, regardless of source, is not guaranteed or warranted. All information should be independently verified. Copyright 2026 MiRealSource. All rights reserved. The information provided hereby constitutes proprietary information of MiRealSource, Inc. and its shareholders, affiliates and licensees and may not be reproduced or transmitted in any form or by any means, electronic or mechanical, including photocopy, recording, scanning or any information storage and retrieval system, without written permission from MiRealSource, Inc. [Click here for more information](/mls-disclaimers/#261)
No obligation · Same-day response