Loading...

Edmonton, AB, T6A3H1 • Forest Heights • Division No. 11
3Beds
1Baths
1,200Sqft
Demand and pricing signals for this listing
192 days on market
Established listing
Apartment
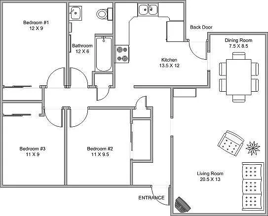
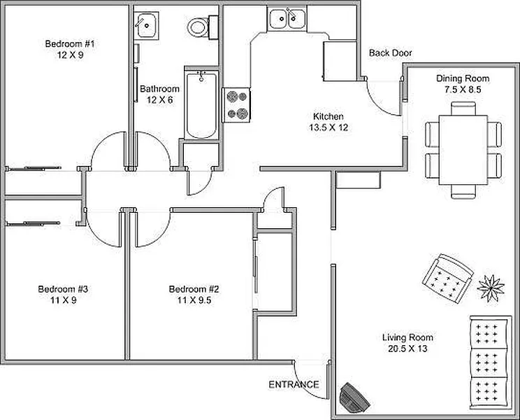
3-Bed 1-bath main floor suite near RIVER VALLEY in Forest Hts Available October 1 Bright & Spacious 3-Bedroom Main Floor Suite in Forest HeightsLooking for a comfortable home in a peaceful, park-filled neighborhood that's still close to the action? This well-kept main floor suite in desirable Forest Heights offers the best of both worldsquiet living with quick access to downtown, University of Alberta, King's College and Concordia University. Direct bus routes make commuting a breeze.Spacious & Updated Enjoy fresh new flooring, a large kitchen with tons of cabinetry, and a dining area with a built-in wall unit for extra storage.Parking Made Easy Two powered parking stalls included.Shared Laundry Free, convenient laundry facilities on site.Utilities Simplified:Flat monthly fee of $120 per person (adult and child)Examples:1 person: $1202 people: $2403 people: $3604 people: $480Additional Details:Lawn & sidewalk care required (lawnmower provided).No pets and no smoking indoors.There is no dishwasher and no garage.There are two separate basement suites in the house with their own private access.Interested?When you reply, please include:A bit about yourself (and other tenants, if applicable)Number of people rentingDesired move-in dateDon't miss the chance to live in one of Edmonton's most walkable and scenic neighborhoods.
Standout features identified
Our analysis highlights large kitchen, tons of cabinetry, and dining area as key attractions of this home.
Key facts and listing details
2 categories of property features
Market data and value estimates
Edmonton, AB, T6A3H1
9 events
Local context around this listing
Edmonton, AB • Division No. 11
Nearby neighborhoods
Nearby cities
Nearby zip codes
No obligation · Same-day response