Loading...

Westmont, IL, 60559 • 60559 • DuPage County
$287/sqft
4Beds
4Baths
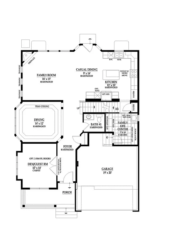
2,918Sqft
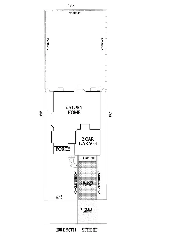
0.17 acLot
2018Built
Tile & Hardwood Floors
Quality flooring throughout
Demand and pricing signals for this listing
1 views
People checking out this listing
2449 days on market
Established listing
$287/sqft
Price per square foot
Single Family · Built 2018
This 2918 square foot single family home has 4 bedrooms and 4.0 bathrooms. This home is located at 108 E 56th St, Westmont, IL 60559.
Based on current rates
Est. 6.08% rate · 30yr fixed · $669,200 loan
Full calculator →Key facts and listing details
6 categories of property features
1 room detailed
Dining Room
Market data and value estimates
3 schools rated nearby
Westmont, IL, 60559
16 events
25 years of records
Local context around this listing
Westmont, IL • DuPage County
Nearby cities
Nearby zip codes
No obligation · Same-day response