Loading...

Redmond, WA, 98053 • 98053 • King County
2.6 acLot
Territorial Views
Territorial
Redmond
98053
This home is getting attention
Listed 38 days ago · 27 views
Demand and pricing signals for this listing
27 views
People checking out this listing
38 days on market
Established listing
This home ranks in the top 30% of listings most likely to go under contract soon, based on market activity and demand signals.
Want the full market analysis?
Get the detailed selling prediction score, comparable sales data, and price trend forecast for this property.
Free · Delivered to your inbox in minutes
Lot
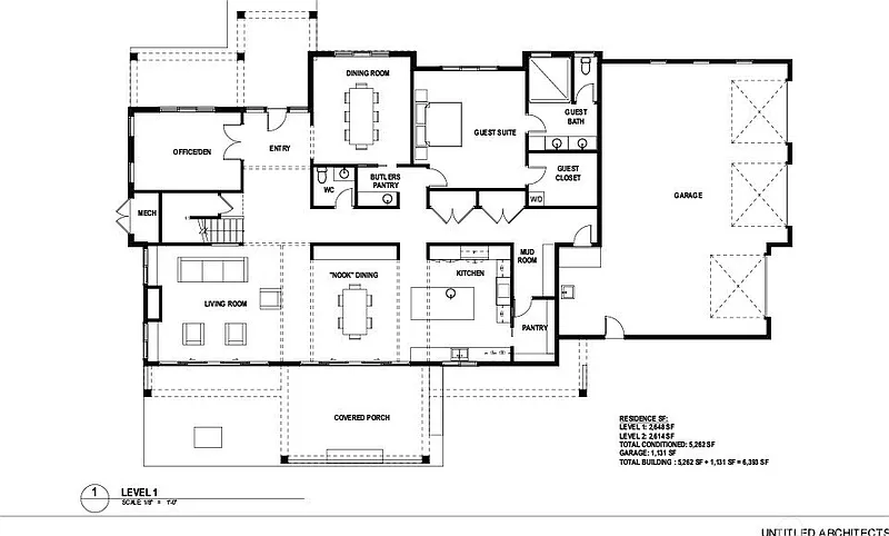
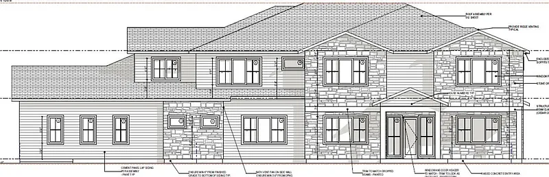
Last chance before construction begins! Set on 2.59 tranquil acres, plus an undivided ownership interest in 5.89 acres of adjoining green space, this largely level parcel is enveloped by mature trees that bring beauty to every season. Enjoy the quiet rhythm of country living paired with unmatched convenience—just minutes from Microsoft, downtown Redmond, and Woodinville Wine Country. Property is cleared, driveway roughed in, well installed, utilities arranged, reports complete, and building permit issued with approved plans for a 5,262 SF home and a large 1,131 SF garage with shop or ADU—ready to build immediately. Situated on a corner lot at the end of a quiet lane, adjacent to the 800-acre Redmond watershed, near miles of trails and top-rated schools.
Standout features identified
Our analysis highlights largely level parcel, tranquil acres, and beauty in every season as key attractions of this home.
Based on current rates
Est. 6.19% rate · 30yr fixed · $1,160,000 loan
Full calculator →Key facts and listing details
5 categories of property features
Market data and value estimates
3 schools rated nearby
Redmond, WA, 98053
3 events
Local context around this listing
Redmond, WA • King County
Nearby neighborhoods
Nearby cities
Nearby zip codes
Based on information submitted to the MLS GRID as of 2026-04-07 13:33:49 PDT. All data is obtained from various sources and may not have been verified by broker or MLS GRID. Supplied Open House Information is subject to change without notice. All information should be independently reviewed and verified for accuracy. Properties may or may not be listed by the office/agent presenting the information. [Click here for more information](/mls-disclaimers/#39)
No obligation · Same-day response