Loading...

Jersey City, NJ, 07305 • Greenville • Hudson County
0.26 acLot
This home is getting attention
Listed 70 days ago · 134 views · 8 saves
Demand and pricing signals for this listing
134 views
People checking out this listing
8 saves
Buyers have saved this home
70 days on market
Established listing
This home ranks in the top 43% of listings most likely to go under contract soon, based on market activity and demand signals.
Want the full market analysis?
Get the detailed selling prediction score, comparable sales data, and price trend forecast for this property.
Free · Delivered to your inbox in minutes
Lot
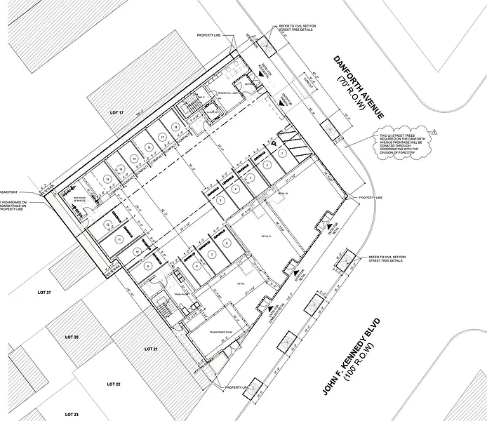
Fully approved mixed-use development opportunity on a highly visible, high-traffic corner along JFK Boulevard in Jersey City’s designated redevelopment zone. This shovel-ready project spans 1727–1733 JFK Blvd and offers a rare combination of scale, income flexibility, and future upside—saving a buyer years of entitlement risk and carrying costs. The approved plans call for a 54-unit residential building featuring a diverse mix of 1-, 2-, and 3-bedroom layouts, including 8 affordable housing units, paired with 3 ground-floor retail spaces and 18 on-site garage parking spaces. The project is thoughtfully designed to meet strong renter demand while maximizing long-term value in a rapidly improving corridor. Adding to the opportunity, the existing retail component can be immediately utilized, with the ability to operate up to 6 retail spaces generating over $15,000/month in income, offering a unique bridge strategy while preparing for construction. The site is currently fully vacant and development-ready, allowing a buyer to proceed without tenant displacement. Included in the offering are two oversized residential lots on Danforth Avenue, providing an additional value-add or alternate development path, with the ability to construct large 3-bedroom condominium units—ideal for phased development, condo sellout, or supplemental rental inventory. Located at the intersection of JFK Boulevard and Danforth Avenue, this corner site benefits from exceptional visibility, strong foot and vehicle traffic, proximity to transit, and sustained demand driven by Jersey City’s continued growth. The combination of approved density, mixed-use flexibility, existing income potential, and additional buildable lots makes this a highly versatile acquisition suitable for developers, investors, or owner-users seeking scale with minimized execution risk. A rare, fully approved mixed-use project with immediate income and long-term upside in one of Jersey City’s most active redevelopment corridors.
Based on current rates
Est. 6.75% rate · 30yr fixed · $3,160,000 loan
Full calculator →Key facts and listing details
Market data and value estimates
3 schools rated nearby
Jersey City, NJ, 07305
1 event
Local context around this listing
Jersey City, NJ • Hudson County
Nearby neighborhoods
Nearby cities
Nearby zip codes
IDX information is provided exclusively for personal, non-commercial use, and may not be used for any purpose other than to identify prospective properties consumers may be interested in purchasing. Information is deemed reliable but not guaranteed.
No obligation · Same-day response