Loading...

Channahon, IL, 60410 • 60410 • Will County
$112/sqft
Down payment assistance available
3Beds
2Baths
1,568Sqft
0.16 acLot
2026Built
Park/Greenbelt Views
Park/Greenbelt
Remington Woods
60410
This home is getting attention
Listed 155 days ago · 512 views · 30 saves
Demand and pricing signals for this listing
512 views
People checking out this listing
30 saves
Buyers have saved this home
155 days on market
Established listing
$112/sqft
Price per square foot
This home ranks in the top 48% of listings most likely to go under contract soon, based on market activity and demand signals.
Want the full market analysis?
Get the detailed selling prediction score, comparable sales data, and price trend forecast for this property.
Free · Delivered to your inbox in minutes
Manufactured · Built 2026
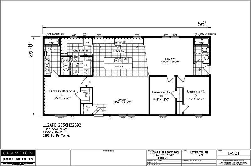
The Belvidere - the perfect home with a barndoor to the Butler's Pantry and an island that seats 6, open to the living room, family room, and dining area. The master suite is located in the rear of the home for privacy and features a Calcutta tile walk-in shower with glass barn door. The other two bedrooms are located in the front of the home just off the secondary bathroom with tub/shower combination. This home is perfectly located on the walking path with room for a 2-car garage... our contractor can build for $27,500 including concrete, electric and garage door/opener. Two full living rooms. Rare. Functional. Valuable. Create a formal sitting space and a relaxed family room. Entertain in one, unwind in the other. The flexibility alone sets this layout apart. At the center of the home is a commanding kitchen with a massive island, modern farmhouse styling, and stainless wall-mounted range hood. The Butler's Pantry features 10 extra feet of cabinetry plus a window to create the perfect coffee bar, baker's nook, or even craft room. Home Details: -Brand New Construction -Seven (7) Year Home Warranty -3 Bedrooms -2 Full Bathrooms -2 Car Driveway -Two Wooden Entrance Decks -Gas Forced Air Furnace -Central Air Conditioning Appliances- Whirlpool Stainless with Black -Above the Range Euro Range Hood -Gas Stove With Upgraded Griddle -Dishwasher in Cabinetry -Oversized Farmsink
Standout features identified
Our analysis highlights stainless wall-mounted range hood, central air conditioning, and dishwasher in cabinetry as key attractions of this home.
Based on current rates
Est. 6.88% rate · 30yr fixed · $140,000 loan
Full calculator →Key facts and listing details
8 categories of property features
1 room detailed
Other
Market data and value estimates
3 schools rated nearby
Channahon, IL, 60410
1 event
Local context around this listing
Channahon, IL • Will County
Nearby cities
Nearby zip codes
No obligation · Same-day response