Loading...

Happy Valley, OR, 97086 • 97086 • Clackamas County
$280/sqft
4Beds
3Baths
2,928Sqft
2026Built
Scouters Mountain
97086
3-Car Garage
Garage
This home is getting attention
Listed 13 days ago · 120 views · 7 saves
Demand and pricing signals for this listing
120 views
People checking out this listing
7 saves
Buyers have saved this home
13 days on market
Recently listed
$280/sqft
Price per square foot
This home ranks in the top 34% of listings most likely to go under contract soon, based on market activity and demand signals.
Want the full market analysis?
Get the detailed selling prediction score, comparable sales data, and price trend forecast for this property.
Free · Delivered to your inbox in minutes
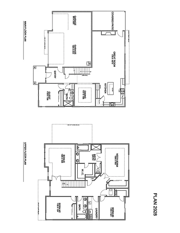
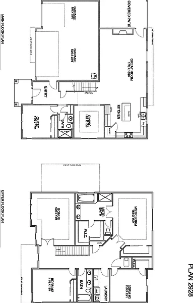
Single Family · Built 2026
The 2928 plan is one of our largest homes with 4 bedrooms and 3 baths, featuring a main floor guest suite and formal dining room. The open kitchen includes slab quartz or granite counters, under-mount sink, and shaker style cabinetry. The large great room, with access to the covered patio, includes an inviting gas fireplace that beckons you back inside to relax and warm up on chilly nights. The second floor includes a spacious bonus room, two bedrooms and the master suite offering a bath with dual vanity and a spacious walk-in closet. Don't wait, call today!*
Based on current rates
Est. 6.25% rate · 30yr fixed · $655,968 loan
Full calculator →Virtual Tour
Open in new tab ↗Loading virtual tour…
Key facts and listing details
1 category of property features
Market data and value estimates
3 schools rated nearby
Happy Valley, OR, 97086
1 event
Local context around this listing
Happy Valley, OR • Clackamas County
Nearby cities
Nearby zip codes
No obligation · Same-day response