Loading...

Lancaster, CA, 93536 • 93536 • Los Angeles County
2.4 acLot
Mountain(s) Views
Mountain(s)
This home is getting attention
Listed 42 days ago · 6 views
Demand and pricing signals for this listing
6 views
People checking out this listing
42 days on market
Established listing
This home ranks in the top 20% of listings most likely to go under contract soon, based on market activity and demand signals.
Want the full market analysis?
Get the detailed selling prediction score, comparable sales data, and price trend forecast for this property.
Free · Delivered to your inbox in minutes
Lot
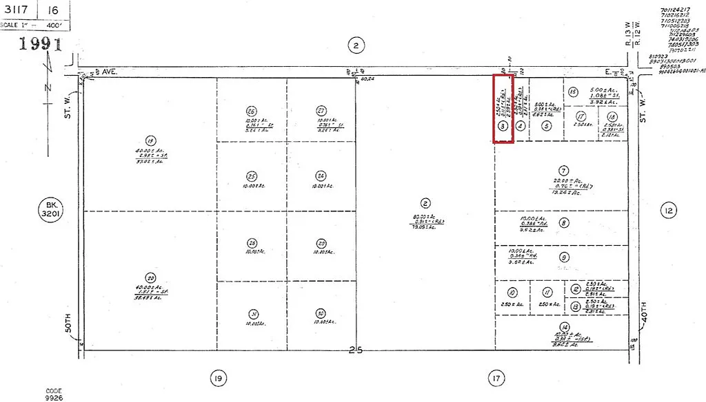
Seller Financing Available. Zoned Light Industrial and in Fox Field Master Plan. Investor Opportunity--Do Not Delay, Start Investing in Land! This well priced 2.39 acre parcel is in the City of Lancaster and is already zoned Light Industrial. This parcel offers legal access and road frontage along Avenue E. Electric power poles located just east of the property along 40th west and is adjacent to an 80ac parcel. Future development site is within the City of Lancaster's Fox Field Industrial Corridor Specific Plan, North of the General William J. Fox Airfield. The Fox Field Industrial Corridor is a premier 8,200-acre master-planned area hosting major distribution centers, aerospace firms, and manufacturing facilities. Large scale developments planned in the immediate vicinity of this parcel include a new BYD bus factory and the 1.2 million sqft ''Northpoint'' warehouse developments. The Fox airfield supports several major operations, including a U. S. Forest Service fixed-wing airtanker and helicopter base, making it a key regional hub for aerial firefighting and suppression efforts during fire season. The surrounding area features a mix of industrial uses and established residential housing, suggesting potential versatility in future use (buyer to verify). Conveniently located near Highway 138 and the 14 Freeway, the property offers easy access to services, and employment centers of both Lancaster and Palmdale.
Based on current rates
Est. 6.75% rate · 30yr fixed · $19,200 loan
Full calculator →Key facts and listing details
4 categories of property features
Market data and value estimates
3 schools rated nearby
Lancaster, CA, 93536
1 event
Local context around this listing
Lancaster, CA • Los Angeles County
Nearby neighborhoods
Nearby cities
Nearby zip codes
The multiple listing data appearing on this website, or contained in reports produced therefrom, is owned and copyrighted by California Regional Multiple Listing Service, Inc. ("CRMLS") and is protected by all applicable copyright laws. Information provided is for viewer's personal, non-commercial use and may not be used for any purpose other than to identify prospective properties the viewer may be interested in purchasing. All listing data, including but not limited to square footage and lot size is believed to be accurate, but the listing Agent, listing Broker and CRMLS and its affiliates do not warrant or guarantee such accuracy. The viewer should independently verify the listed data prior to making any decisions based on such information by personal inspection and/or contacting a real estate professional. Based on information from California Regional Multiple Listing Service, Inc. as of 2026-02-09 09:51:42 PST and /or other sources. All data, including all measurements and calculations of area, is obtained from various sources and has not been, and will not be, verified by broker or MLS. All information should be independently reviewed and verified for accuracy. Properties may or may not be listed by the office/agent presenting the information
No obligation · Same-day response